ABA conceptualizes eco-cabins nestled on mount cotton hillside
all images courtesy of ABA

 

 

 

the hillside views of mount cotton in redland bay in south east queensland, australia are the chosen location for a series of conceptual eco-cabins by australian architecture firm ABA. the site is owned by a fifth-generation farmer who decided that after many years of happiness, it was time to share the view. 

ABA mount cotton eco-cabins designboom
decks of one and two bedroom cabins 

 

 

 

the conceived plan includes five cabins — one to two bedrooms — that sit gently on the hillside offering uninterrupted views for miles around. to ensure the least possible amount of disruption to the earth, the design and location has been carefully considered. each space has been tweaked to allow for maximum privacy amongst guests without compromising scenery. inside, comfortably furnished rooms allow visitors an off-grid experience while still maintaining a high-level of functionality and quality.

ABA mount cotton eco-cabins designboom
larger cabin with bedroom located in the back 

abadesignboom07
interior furnishings of one bedroom cabin 

ABA mount cotton eco-cabins designboom
renderings 

abadesignboom05
site plan 

abadesignboom01
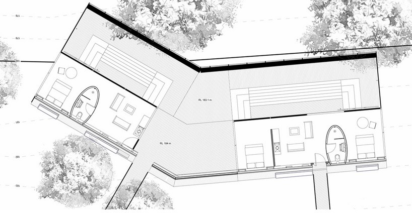
two bedroom floor plan 

ABA mount cotton eco-cabins designboom
masterplan

 

 

designboom has received this project through its ‘DIY submissions’ feature, which welcomes readers to submit their own work for publication. see more designboom readers submissions here.