minako wakasa’s rural farmhouse references american shaker architecture
photography by yoshihiro asada

 

 

 

located in japan’s shiga prefecture, this rural dwelling named ‘farmhouse’ references the simple and reserved nature of american shaker architecture. designed by minako wakasa in collaboration with motoaki sano, the home’s interior is organized around a wood burning stove, with solid timber flooring extending throughout the plan. complementing this use of natural materials, iron, glass and fabric have all been utilized to ensure a comfortable and hospitable living environment for the client and their family.

minako wakasa farmhouse shiga japan designboom
the compact dwelling is situated in a rural area of japan’s centrally located shiga prefecture

minako wakasa farmhouse shiga japan designboom
the home’s entrance is found between two protruding metal-clad volumes

minako wakasa farmhouse shiga japan designboom
the use of different types of timber continues throughout the design

minako wakasa farmhouse shiga japan designboom
 the home’s interior is organized around a wood burning stove

minako wakasa farmhouse shiga japan designboom
natural materials ensure a comfortable and hospitable living environment

minako wakasa farmhouse shiga japan designboom
timber surfaces extend throughout the plan, with curtains used to delineate space

minako wakasa farmhouse shiga japan designboom
the property references the simple and reserved nature of american shaker architecture

minako wakasa farmhouse shiga japan designboom
large floor-to-ceiling windows provide occupants with pleasant external sightlines

minako wakasa farmhouse shiga japan designboom
a private and elevated tatami space is found at the plan’s upper level

 

drawings

minako wakasa farmhouse shiga japan designboom
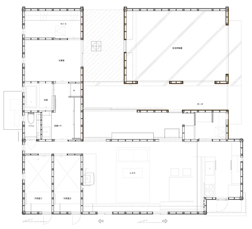
floor plan / level 0: primary living and sleeping accommodation is found at ground floor level

minako wakasa farmhouse shiga japan designboom
floor plan /level +1: the upper storey, including the residence’s secluded tatami space (right)

 

 

project info:

 

location: shiga, japan
client: private
completed: 2014
site area: 359.48 sqm / 3,864 sqf
constructed area: 156.09 sqm / 1,680 sqf
photography: yoshihiro asada