‘house of trades’ by team c.a.s.a., guatemala city, guatemala
image © giulia celentano

 

 

 

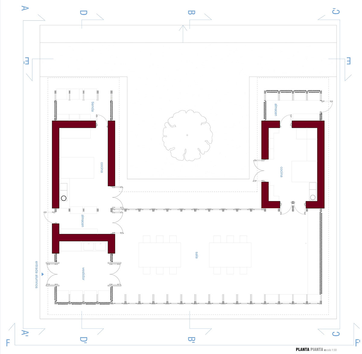
this year’s CUCS conference in turin will feature amongst its projects the new ‘house of trades’ recently completed in cerro la granadilla, a small village 50 kilometers from the country’s capital. a group of students, volunteers, professionals, and locals working under the alias team c.a.s.a. (central american sustainable architecture) have realized the project seeking a self-build strategy that could be translated to other settings around south america. in a context where women typically rear children at a younger age, the team of architects and engineers sought out to provide an ecological, local structure that would provide the necessary framework to give the women the economic independence to lead rich fulfilling lives. 

 

the structure, built over a period of two months, includes a large open flexible space and an enclosed kitchen. the timber canopy and supporting frame was made from the same readily available wooden members sourced locally, and effectively protects the space from direct sunlight and rain, allowing it to be used as a multi-functional gathering space. extensive research was done to understand the typical construction and uses of the buildings in the village.  as a result, a rammed earth wall was made by hand using soil directly from the site, resting on a concrete footing and later covered in a thin coat of plaster to help protect the construction from the elements. the thick thermal mass helps regulate the extreme fluctuations in temperature and provide a comfortable space. panels of woven bamboo rods provide lateral shading in the larger areas and can be opened manually.

 

 

new trade school in guatemala empowers its citizens
image © giulia celentano

 

 

new trade school in guatemala empowers its citizens
image © giulia celentano

 

 

new trade school in guatemala empowers its citizens
image © giulia celentano

 

 

new trade school in guatemala empowers its citizens
image © giulia celentano

 

 

 

new trade school in guatemala empowers its citizens
enclosed kitchen area with exposed layers of rammed earth
image © giulia celentano

 

 

new trade school in guatemala empowers its citizens
image © giulia celentano

 

 

new trade school in guatemala empowers its citizens
rammed earth wall detail
image © giulia celentano

 

 

new trade school in guatemala empowers its citizens
bamboo-woven panels shade the earth construction
image © giulia celentano

 

 

new trade school in guatemala empowers its citizens
affordable corrugated metal roofing protects the structures beneath and sheds water
image © giulia celentano

 

 

 

new trade school in guatemala empowers its citizens
image © giulia celentano

 

 

new trade school in guatemala empowers its citizens
image © giulia celentano

 

 

new trade school in guatemala empowers its citizens
interior of kitchen area
image © giulia celentano

 

 

new trade school in guatemala empowers its citizens
image © giulia celentano

 

 

new trade school in guatemala empowers its citizens
construction of timber frame
image © giulia celentano

 

 

new trade school in guatemala empowers its citizens
image © giulia celentano

 

 

new trade school in guatemala empowers its citizens
construction of kitchen area
image © giulia celentano

 

 

new trade school in guatemala empowers its citizens
image © giulia celentano

 

 

new trade school in guatemala empowers its citizens
image © giulia celentano

 

 

new trade school in guatemala empowers its citizens
image © giulia celentano

 

 

new trade school in guatemala empowers its citizens
(left) formwork for kitchen structure
(right) framework for embedded windows
image © giulia celentano

 

 

1/6
new trade school in guatemala empowers its citizens
 
new trade school in guatemala empowers its citizens
 
new trade school in guatemala empowers its citizens
 
new trade school in guatemala empowers its citizens
 
new trade school in guatemala empowers its citizens
 
new trade school in guatemala empowers its citizens
 

 

project info:

 

location: cerro la granadilla, guatemala
design: team c.a.s.a. (mezzosangue lab + ak0)
team: sandro sancineto e stefan pollak (coordinators)
laura di virgilio (site supervisor), cristiana graziani, sara parlato, federico savi, davide onorati, gianni perrucci,
asia cole diaz, dalilah abdel qader, teodoro chiaravallotti, cecilia de marinis, giulia celentano.
workshop participants: chiara castello, daniela cimino, sara longo, lorenzo fauvette, luigi lanzillotti,
mariastefania bianco, cecilia canzian, camilla sgamma, michele didonna, giuliana fimmanò, maria ponte,
riccardo bernaschi, chiara tagliaro, marcello lubiani, gianluca ramaccia, fatima subida.
technical consultants: armando coppola, enrico grillo.