umbre architects completes house in tutujigaoka, japan
photo by ken’ichi suzuki
all images courtesy of umbre architects

 

 

 

japanese practice umbre architects has completed ‘house in tutujigaoka’, a dwelling located in a pleasant suburban neighborhood of tokyo. situated next to a municipal park, the family property is surrounded by spacious two-storey houses. designed for a family of four – a couple and their two children – the dwelling is envisioned as a retreat where they are able to relax away from the stresses of work.

 

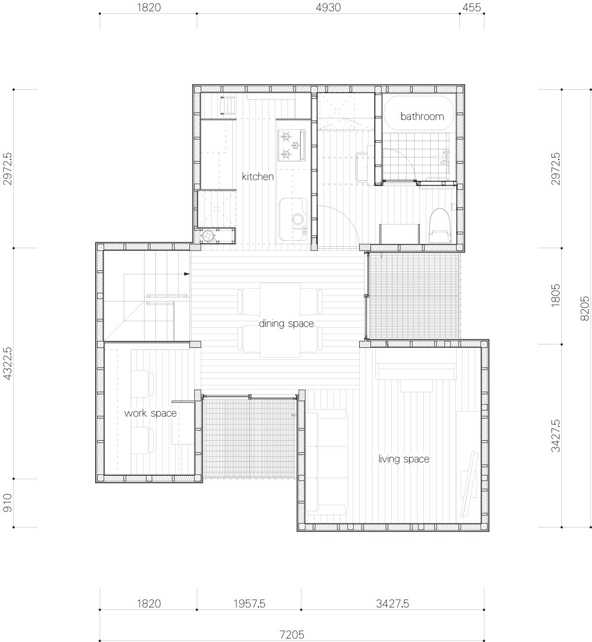
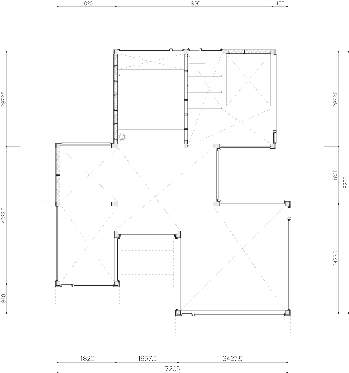
the structure comprises three cuboid volumes oriented around central communal areas. the ground floor features the home’s bedrooms and a tatami room, while living accommodation is spread across the upper level. kitchen and living rooms are connected via a central dining space that allows the family to congregate throughout the working week.

umbre-architects-house-in-tutujigaoka-tokyo-japan-designboom-02
the dwelling is located in a pleasant suburban neighborhood of tokyo
photo by ken’ichi suzuki

umbre architects house in tutujigaoka tokyo japan designboom
the dwelling is envisioned as a retreat, allowing its inhabitants to relax away from the stresses of work
photo by ken’ichi suzuki

umbre architects house in tutujigaoka tokyo japan designboom
he structure comprises three cuboid volumes oriented around central communal areas
photo by ken’ichi suzuki

umbre architects house in tutujigaoka tokyo japan designboom
the ground floor features the home’s bedrooms and a tatami room
photo by ken’ichi suzuki

umbre architects house in tutujigaoka tokyo japan designboom
living accommodation is spread across the upper level
photo by ken’ichi suzuki

umbre architects house in tutujigaoka tokyo japan designboom
kitchen and living rooms are connected via a central dining space
photo by ken’ichi suzuki

 

drawings

1/4
umbre architects house in tutujigaoka designboom
 
umbre architects house in tutujigaoka designboom
 
umbre architects house in tutujigaoka designboom
 
umbre architects house in tutujigaoka designboom