kasa architects completes shared house to accommodate 45 residents
photo by ikunori yamamoto
all images courtesy of kasa architects

 

 

 

in chiba, a 40-minute train journey from tokyo, local japanese practice kasa architects has designed a shared house capable of accommodating up to 45 residents at any one time. alongside private living accommodation, the scheme also offers guests a range of communal amenities, including a study room, library and lounge.

kasa architects share house funabashi japan designboom
a kitchen adjoins a dining area designed for congregation and relaxation
photo by ikunori yamamoto

 

 

 

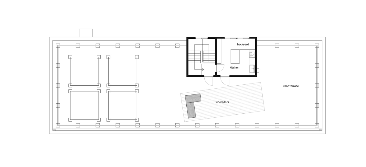
at the building’s ground floor, a kitchen adjoins a spacious dining area designed for congregation and relaxation, furnished with pale timbers that complement the interior’s white surfaces. above, subsequent storeys contain 5×3 meter residential units, while a roof terrace at the uppermost level provides views across the surrounding neighborhood. the project seeks to provide a wide range of clientele with warm, comfortable and pleasant living spaces.

kasa architects share house funabashi japan designboom
communal living space
photo by ikunori yamamoto

kasa architects share house funabashi japan designboom
pale timbers complement the interior’s white surfaces
photo by ikunori yamamoto

kasa architects share house funabashi japan designboom
the spacious kitchen allows many residents to cook at once
photo by ikunori yamamoto

kasa architects share house funabashi japan designboom
a library is found at ground floor level
photo by ikunori yamamoto

kasa architects share house funabashi japan designboom
private areas for study
photo by ikunori yamamoto

kasa architects share house funabashi japan designboom
a rooftop terrace provides views across the neighborhood
photo by ikunori yamamoto

kasa architects share house funabashi japan designboom
the entrance to the shared house
photo by ikunori yamamoto

kasa architects share house funabashi japan designboom
the building is set back from the street’s edge
photo by ikunori yamamoto

 

1/12
kasa architects share house funabashi japan designboom
 
kasa architects share house funabashi japan designboom
 
kasa architects share house funabashi japan designboom
 
kasa architects share house funabashi japan designboom
 
kasa architects share house funabashi japan designboom
 
kasa architects share house funabashi japan designboom
 
kasa architects share house funabashi japan designboom
 
kasa architects share house funabashi japan designboom
 
kasa architects share house funabashi japan designboom
 
kasa architects share house funabashi japan designboom
 
kasa architects share house funabashi japan designboom
 
kasa architects share house funabashi japan designboom
 

 

project info:

 

name: share house funabashi

location: funabashi, chiba, japan

use: share house(renovation)

site area: 830.48 sqm

building area: 11285.33 sqm

gross floor area: 394.83 sqm

building coverage ratio: 154.767%

gross floor ratio: 47.54%

building scale: 5 storeys above ground

structure: concrete

maximum height: 14.65 m

client: private 

architect: shin kasakake / kasa architects
construction: dainichi.inc
furniture: studio anagram.inc

photography: ikunori yamamoto