a2o + kempe thill envision transparent extension for het havenhuis
all images courtesy a2o architecten and atelier kempe thill

 

 

 

in 2008, a2o architecten and atelier kempe thill entered the competition for the renovation and extension of ‘het havenhuis’ in antwerp, belgium. the proposal intends to strengthen the unique character of the city and its harbor, because the designers believe that, ‘antwerp is building a future in which the mixture of the past and the present creates an idiosyncratic identity. the ‘havenhuis’ was given an international role. it is rooted in the history of the city and at the same time points to the future.’ thus, the renewal of the existing structure constitutes, on the one hand, an architectural icon, but also engages in a dialogue with the context, without repressing its unified past.

a2o architecten kempe thill transparent extension het havenhuis antwerp belgium
the structure maintains the existing structure while presenting a new aesthetic within the city

 

 

 

the present situation is a copy of the original late-medieval ‘hanse house’, with a hybrid construction of load-bearing masonry and concrete. it no longer has a trading function, but acts as a fire station. the condition and organization are transparent and clear, with high rooms and a pattern of openings in the façade that facilitate the pleasant access of daylight. the floor plan provides the starting point for the approach, using the institution’s innate qualities to what is there and confirms the footprint and location.

a2o architecten kempe thill transparent extension het havenhuis antwerp belgium
view across the old port

 

 

 

the shape would be a reflection and a conscious artistic act; not a stunt, but rather of a surrealist and belgian nature that smartly links with the old. all of the rooms would be pushed towards the perimeter of the footprint, making way for an inner court. the contemporary volume would continue this concept in a light steel structure completed fully in dry plaster. as it cuts through the roof, it acts as a bridging element. the solution shows the possibilities of vertical extensions within an extant context. it confirms its role as a symbol of the international port of antwerp. the proposal would be an addition to the city’s skyline, at the spot where the old and new harbor meet.

a2o architecten kempe thill transparent extension het havenhuis antwerp belgium
the volume is a replication of the building over a horizontal axis

a2o architecten kempe thill transparent extension het havenhuis antwerp belgium
model of the competition entry 

a2o architecten kempe thill transparent extension het havenhuis antwerp belgium
sketch

a2o architecten kempe thill transparent extension het havenhuis antwerp belgium
concept: the extension smartly links with the old constraints

a2o architecten kempe thill transparent extension het havenhuis antwerp belgium
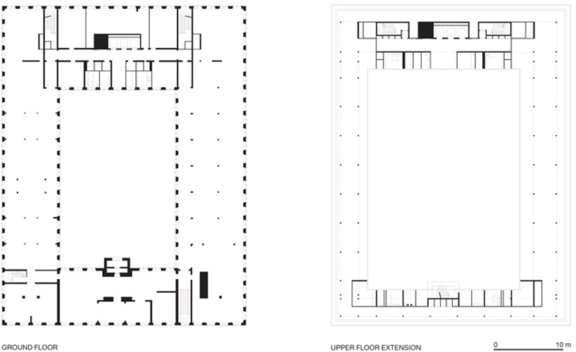
ground floor plan and upper floor extension

a2o architecten kempe thill transparent extension het havenhuis antwerp belgium
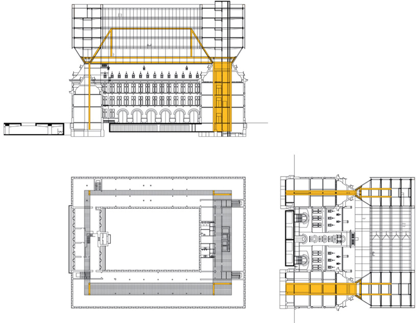
construction concept of the upper volume

a2o architecten kempe thill transparent extension het havenhuis antwerp belgium
section through the building

a2o architecten kempe thill transparent extension het havenhuis antwerp belgium
site plan

 

 

designboom has received this project from our ‘DIY submissions‘ feature, where we welcome our readers to submit their own work for publication. see more project submissions from our readers here.