‘hindsgavl nature reserve’ by aart architects, middlefart, denmarkimage © adam morkall images courtesy of aart architects

 

 

although the ‘nature center hindsgavl’ is the subject of this article, the hindsgavl nature reserve is the subject of the building, which is designed by local practice aart architects to provide a space from which to view, learn about, and experience the pristine nature around it. the building in this sense becomes an interactive object for all seasons with no surface left off-limits. growing subtly out of the landscape, the green roof projects out into the sky, allowing visitors a vantage point to see clear to the horizon. large windows and doors create a threshold between the interior and exterior, a relationship strengthened through the contrasting use of timber cladding from the outside to the inside.

 

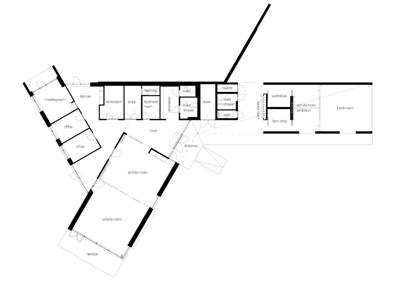
as it is a structure to be used year-round, the a series of linear volumes contain the various programmatic elements, arranged in a triangular footprint of merging elements. the section continues the existing terrain, growing out of the ground into a large curtain wall that frames – quite literally, with the use of a protruding solar screen – the natural territory beyond. an entrance leads to the core of the triskel-like plan, an open foyer that communicates with the technical services and workshops along the northern axis, the multifunctional activity rooms extending to the south west, and the administrative program completing the northwestern face. being a nature center, the architects worked closely with the miljøforum fyn organization to assure that the structure itself reflects the sustainable environment it aims to display and protect. the construction abides by the passive house standard meaning that it is entirely CO2 neutral and carries and annual heat requirement of less than 15 kWh/m2/year.

AART architects: nature center hindsgavl, denmarkin its natural contextimage © adam mork

 

 

AART architects: nature center hindsgavl, denmarkblack painted wood wraps the exterior surface giving it a distinct presenceimage © adam mork

 

 

AART architects: nature center hindsgavl, denmarkthe exploded frames create a sun shade that also frames the landscapeimage © adam mork

 

 

AART architects: nature center hindsgavl, denmarkthe lower section is marked by horizontally placed planks, followed by vertical orientations in the top halfimage © adam mork

 

 

AART architects: nature center hindsgavl, denmarkstructure ideal for summer and winter useimage © adam mork

 

 

AART architects: nature center hindsgavl, denmarkinhabitable roof structure provides a lookout pointimage © adam mork

 

 

AART architects: nature center hindsgavl, denmarksubtle presence within the terrainimage © adam mork

 

 

AART architects: nature center hindsgavl, denmarkinterio/exterior spaces blend into one anotherimage © adam mork

 

 

AART architects: nature center hindsgavl, denmarkunderpass to the other side of the site, through the structureimage © adam mork

 

 

AART architects: nature center hindsgavl, denmarkactivity spaces with retractable dividers divide or combine a large spaceimage © adam mork

 

 

AART architects: nature center hindsgavl, denmarkview to the outsideimage © adam mork

 

 

AART architects: nature center hindsgavl, denmarknatural wood interiors create a soft environment illuminated with natural lightimage © adam mork

 

 

AART architects: nature center hindsgavl, denmarkimage © adam mork

 

 

AART architects: nature center hindsgavl, denmarkentrance foyer servicing all programimage © adam mork

 

 

AART architects: nature center hindsgavl, denmarkimage © adam mork

 

 

AART architects: nature center hindsgavl, denmarkimage © adam mork

 

 

AART architects: nature center hindsgavl, denmarkimage © adam mork

 

 

 

AART architects: nature center hindsgavl, denmark

AART architects: nature center hindsgavl, denmarksite plan

 

 

AART architects: nature center hindsgavl, denmarkfloor plan / level 0

 

 

AART architects: nature center hindsgavl, denmarksection

 

 

project info:

 

 

project: 1st prize in open competition 2009program: activity and outdoor centre in hindsgavl nature reserve location: gals klint vej, brovejen, hindsgavl, middelfart, denmark client: middelfart municipality size: 450 m2 budget: approx. dkk 11,4 mio. / € 1,52 million status: completed in 2012 architect: aart architechts a/s engineer: rønslev andersen a/s landscape architect: aart architechts a/s