accent DG embeds jiyeh villa within lebanese landscape
photo by mansour dib
all images courtesy of accent DG

 

 

 

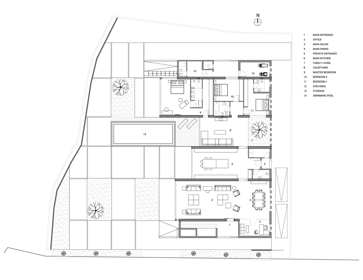
23 kilometers south of the lebanese capital of beirut, local practice accent DG has built a private residence, embedded within the sloping gradient of the site. ‘jiyeh villa’ is composed of four individual volumes united in order to create a rhythmic composition, which helps integrate the structure within the coastal landscape. each one of the four areas function separately, while their overall arrangement creates subtle transitions between the public and private elements of the scheme.

accent DG jiyeh villa lebanon designboom
the private residence is embedded within the sloping gradient of the site
photo by mansour dib

 

 

 

in order to fully embrace the building, the surrounding gardens were landscaped – offering privacy from neighboring homes, as well as allowing access to a cantilevered terrace. a U-shaped wall wraps around the design presenting expansive views, while the façade that looks onto the sea is completely transparent. lateral elevations provide external glimpses through perforations set within the walls, recalling architecture traditionally associated with hot climates.

accent DG jiyeh villa lebanon designboom
a pool is positioned within the expansive terrace
photo by mansour dib

accent DG jiyeh villa lebanon designboom
each one of the four areas of the home function separately, while their overall arrangement creates subtle transitions
photo by mansour dib

accent DG jiyeh villa lebanon designboom
the surrounding gardens were landscaped in order to fully embrace the building
photo by mansour dib

accent DG jiyeh villa lebanon designboom
a U-shaped wall wraps around the design presenting expansive views
photo by mansour dib

accent DG jiyeh villa lebanon designboom
the design recalls architecture traditionally associated with hot climates
photo by mansour dib

accent DG jiyeh villa lebanon designboom
lateral elevations provide external glimpses through perforations set within the walls
photo by mansour dib

accent DG jiyeh villa lebanon designboom
‘jiyeh villa’ illuminated at night
photo by mansour dib

 

1/8
accent DG jiyeh villa designboom
 
accent DG jiyeh villa designboom
 
accent DG jiyeh villa designboom
 
accent DG jiyeh villa designboom
 
accent DG jiyeh villa designboom
 
accent DG jiyeh villa designboom
 
accent DG jiyeh villa designboom
 
accent DG jiyeh villa designboom
 

 

project info:

 

project name: jiyeh villa
location: jiyeh, lebanon

type: residential

architect: accent DG

lead architect: elie abs

project team: mira alassaad, roxanne djaiji, aline fadous, luana mahfouz, elie mattar, farah nasri, hassan nassar

interior design: ADG interiors

area: 700 sqm

MEP consultant: wissam tawil & associates

structural consultant: jamil toufic

status: completed

client: ibrahim barraj, esq