alberto-campo-baeza-domus-aurea-la-casa-del-sorteo-del-tex-de-monterrey-mexico-designboom-01

 

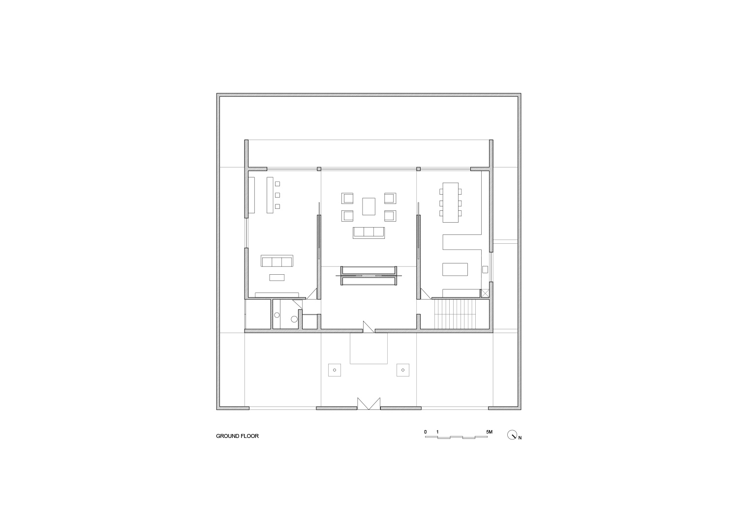
alberto campo baeza has completed ‘domus aurea’, a serene all-white monterrey dwelling that forms the architect’s first residence in mexico. behind the scheme’s opaque walls, a spacious interior is created through the combination of two offset double-height volumes. daylight entering through a clerestory window at the uppermost storey illuminates the entire property, while opposite, a large golden wall reflects this southern light — radiating a distinct golden hue.

alberto-campo-baeza-domus-aurea-la-casa-del-sorteo-del-tex-de-monterrey-mexico-designboom-02
all images by javier callejas

 

 

the project forms the final residence built for sorteos TEC, an philanthropic organization that, among other initiatives, offers scholarships to students and promotes infrastructure and research. developed in collaboration with mexican architect gilberto rodriguez, alberto campo baeza conceived the house as a tribute to luis barragán who, with mathias goeritz, crafted a number of colorful walls throughout his projects.

alberto-campo-baeza-domus-aurea-la-casa-del-sorteo-del-tex-de-monterrey-mexico-designboom-02
the serene all-white dwelling is alberto campo baeza’s first residence in mexico

 

 

‘domus aurea’ — a term that means ‘golden house’ in latin — is divided into three planes: a ground level that contains public areas and access to the garden; an upper storey with bedrooms and a living area overlooking the floor below; and a rooftop containing private areas, including a swimming pool sunken within a terrace. here, an elongated aperture frames a cinematic view of the sierra madre mountain range.

alberto-campo-baeza-domus-aurea-la-casa-del-sorteo-del-tex-de-monterrey-mexico-designboom-02
daylight entering through a clerestory window at the uppermost storey illuminates the entire property

 

 

I did my utmost to ensure that this house would be the most beautiful in the world,’ explains alberto campo baeza. ‘that is my stated intent with every new project that falls into my hands. and of course, if barragán is always present in all my architecture, he is even more in this case, which is why I decided that not only would my house be flooded with light, but that it would be the golden light of barragán.’

alberto-campo-baeza-domus-aurea-la-casa-del-sorteo-del-tex-de-monterrey-mexico-designboom-02
a large golden wall reflects southern light, radiating a distinct golden hue

alberto-campo-baeza-domus-aurea-la-casa-del-sorteo-del-tex-de-monterrey-mexico-designboom-02
a spacious interior is created through the combination of two offset double-height volumes

alberto-campo-baeza-domus-aurea-la-casa-del-sorteo-del-tex-de-monterrey-mexico-designboom-02
a rooftop contains a private swimming pool sunken within a terrace

 

1/8
alberto campo baeza domus aurea la casa del sorteo del TEX de monterrey mexico designboom
 
alberto campo baeza domus aurea la casa del sorteo del TEX de monterrey mexico designboom
 
alberto campo baeza domus aurea la casa del sorteo del TEX de monterrey mexico designboom
 
alberto campo baeza domus aurea la casa del sorteo del TEX de monterrey mexico designboom
 
alberto campo baeza domus aurea la casa del sorteo del TEX de monterrey mexico designboom
 
alberto campo baeza domus aurea la casa del sorteo del TEX de monterrey mexico designboom
 
alberto campo baeza domus aurea la casa del sorteo del TEX de monterrey mexico designboom
 
alberto campo baeza domus aurea la casa del sorteo del TEX de monterrey mexico designboom
 

 

project info:

 

architects: alberto campo baeza and gilberto l. rodríguez
location: monterrey, méxico
client: sorteos TEC — instituto tecnológico de monterrey
project dates: 2014 – 2016
collaborating architects: alejandro cervilla garcía, ignacio aguirre lópez, maría pérez de camino díez, pamela díaz de león, david alatorre, viviana ortíz, mauricio bárcenas, katia radilla, guillermo durán, elena jiménez sánchez, tommaso campiotti, imanol iparraguirre barbero
construction company: sorteo TEC
photography: javier callejas sevilla

Save

Save

Save

Save

Save

Save

Save

Save

Save

Save

Save

Save

Save

Save

Save

Save