bali restaurant by alexis dornier features canopy made from recycled truck tires
all images courtesy of alexis dornier

 

 

 

the design of this restaurant on the indonesian island of bali pays homage to the famous acapulco chair, while subtly referencing the food on offer. first produced in the 1950s, the distinctive chair — usually made of brightly colored vinyl cords — became very popular in mexico as outdoor lounge seating. the eatery, named ‘la pacha mama’, appropriately serves mexican cuisine with a vegetarian twist.

 

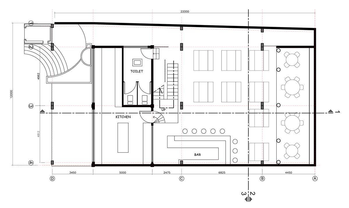
designed by alexis dornier, the restaurant’s inner courtyard is covered with a canopy supported by bent steel tubes that rise above the existing building below. the vertical structural elements form a hybrid of a truss, a vault, and an arch, interwoven with rubber recycled from old truck tires. this structural framework provides space for plants and flowers to grow. the restaurant’s kitchen is viewed from the street through two large windows, with stairs leading to the sheltered terrace above.

alexis-dornier-la-pacha-mama-restaurant-bali-indonesia-designboom-02
the restaurant is covered with a canopy supported by bent steel tubes

alexis-dornier-la-pacha-mama-restaurant-bali-indonesia-designboom-02
stairs lead to a sheltered terrace

alexis-dornier-la-pacha-mama-restaurant-bali-indonesia-designboom-02
the design pays homage to the famous acapulco chair

alexis-dornier-la-pacha-mama-restaurant-bali-indonesia-designboom-02
bent steel tubes rise above the existing building

alexis-dornier-la-pacha-mama-restaurant-bali-indonesia-designboom-02
the vertical structural elements form a hybrid of a truss, a vault, and an arch

alexis-dornier-la-pacha-mama-restaurant-bali-indonesia-designboom-02
the supports are interwoven with rubber recycled from old truck tires

alexis-dornier-la-pacha-mama-restaurant-bali-indonesia-designboom-02
the structural framework provides space for plants and flowers to grow

alexis-dornier-la-pacha-mama-restaurant-bali-indonesia-designboom-02
the restaurant’s kitchen is viewed from the street through two large windows

 

drawings

1/7
alexis dornier la pacha mama restaurant bali indonesia designboom
 
alexis dornier la pacha mama restaurant bali indonesia designboom
 
alexis dornier la pacha mama restaurant bali indonesia designboom
 
alexis dornier la pacha mama restaurant bali indonesia designboom
 
alexis dornier la pacha mama restaurant bali indonesia designboom
 
alexis dornier la pacha mama restaurant bali indonesia designboom
 
alexis dornier la pacha mama restaurant bali indonesia designboom
 

 

project info:

 

location: penestanan, bali, indonesia
program: restaurant
client: la pacha mama team
size: 300 sqm
construction: hal studios indonesia

Save