alphaville’s house in osaka displays staggered spiraling windows
photography by kai nakamura
all images courtesy of alphaville

 

 

 

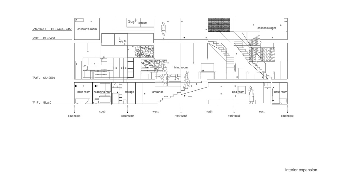
located on a narrow site in the heart of osaka, this three-storey property by japanese architects alphaville features a spiral staircase that wraps around the interior of the home. named ‘spiral window house’, the structure is positioned on a busy street surrounded by other residential dwellings. without compromising  privacy, the client requested a living space which presented external views of the neighborhood – including the yodo river, which passes near the house. consequently, the scheme features large staggered openings that offer sweeping vistas, while simultaneously flooding the open volumes with natural light.

alphaville spiral window house osaka japan designboom
the scheme features large staggered openings that offer external vistas

alphaville spiral window house osaka japan designboom
the kitchen and dining area

alphaville spiral window house osaka japan designboom
a spiral staircase that wraps around the interior of the home

alphaville spiral window house osaka japan designboom
a timber stairway connects the home

alphaville spiral window house osaka japan designboom
the residence is located on a narrow site in the heart of osaka

alphaville spiral window house osaka japan designboom
the property’s uppermost storey

alphaville spiral window house osaka japan designboom
 the structure is positioned on a busy street surrounded by other residential dwellings

alphaville spiral window house osaka japan designboom
‘spiral window house’ illuminated at night

 

drawings

1/4
alphaville spiral window house osaka japan designboom
 
alphaville spiral window house osaka japan designboom
 
alphaville spiral window house osaka japan designboom
 
alphaville spiral window house osaka japan designboom
 

 

project info:

 

type: residential
site: osaka, japan
site area: 48.39 sqm
building area: 28.95 sqm
total floor area: 81.42 sqm
building scale: 3 storeys
structure system: wood
structural engineer: takashi manda / takashi manda structural design
photography: kai nakamura