KEEP UP WITH OUR DAILY AND WEEKLY NEWSLETTERS
watch a new film capturing a portrait of the studio through photographs, drawings, and present day life inside barcelona's former cement factory.
designboom visits les caryatides in guyancourt to explore the iconic building in person and unveil its beauty and peculiarities.
the legendary architect and co-founder of archigram speaks with designboom at mugak/2025 on utopia, drawing, and the lasting impact of his visionary works.
connections: +330
a continuation of the existing rock formations, the hotel is articulated as a series of stepped horizontal planes, courtyards, and gardens.

image © angel luis tendero
various openings along the angular facadeimage © angel luis tendero
yard viewimage © angel luis tendero
(left) man-made topography echoed in the cantilevering roof elements(right) poolimage © angel luis tendero
hard exterior of natural metal texturesimage © angel luis tendero
faceted floor planeimage © angel luis tendero
kitchen located on a plinthimage © angel luis tendero
kitchen area commanding a large spaceimage © angel luis tendero
continuous space with intruding angles making the homogenous nature more dynamicimage © angel luis tendero
living areaimage © angel luis tendero
living room flows into the kitchen spaceimage © angel luis tendero
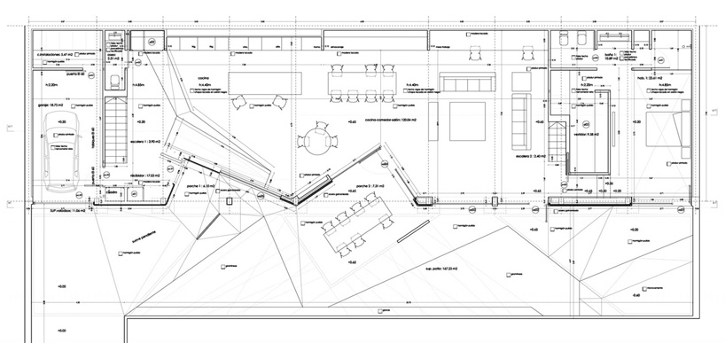
floor plan / level 0
floor plan / level 1
section
section
section
section
section
elevation
elevation
‘alvnat house’ by alt arquitectura, madrid, spainimage © angel luis tendero
concept sketch
perspective of exterior/interior threshold