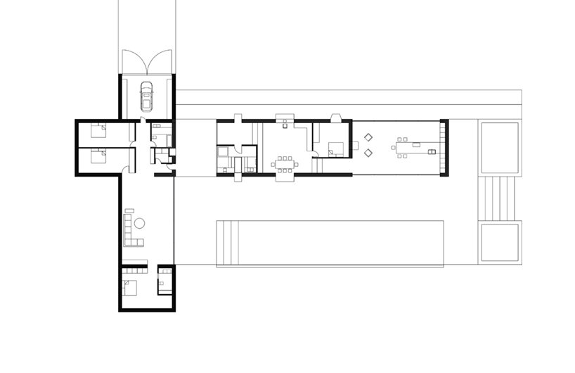
interrupting the vast whiteness of a snow-covered landscape, antony gibbon envisions his andorra house. this latest proposal enhances the flatness of the site with its exaggerated horizontality — a long, intersecting L-shaped footprint made up of two perpendicular volumes spans the ground plane, enhancing the viewer’s primarily horizontal engagement of space. these two blocks enclose a stone courtyard and reflecting pool toward which the house opens with long bands of full height glazing. the dwelling remains more closed off from its natural surroundings along the outward-looking facades which are interrupted with smaller, more graphic punch windows.

antony gibbon andorra house

 

 

the low, horizontal nature of antony gibbon’s andorra house is punctuated with distinct vertical moments. the garage entrance is formalized as a tall and narrow volume of its own, expressed with a flat black finished as it nestles into the dwelling, otherwise clad with black timber siding and rough stone. the punch windows reflect this language, similarly projecting outward as distinct, sloping volumes in matte black, and nesting with the rest of the house. from the interior, this strategy suggests an exaggerated wall thickness and a depth that recalls the atmosphere of a fortress.

antony gibbon andorra houseantony gibbon andorra house antony gibbon andorra house antony gibbon andorra house antony gibbon andorra house antony gibbon punctuates his andorra house with figural window volumes antony gibbon punctuates his andorra house with figural window volumes

 

 

project info:

 

project title: andorra house

architecture: antony gibbon

status: concept