four-in-one: apartment in kamitakada resists tokyo density
all images courtesy of takeshi yamagata

 

 

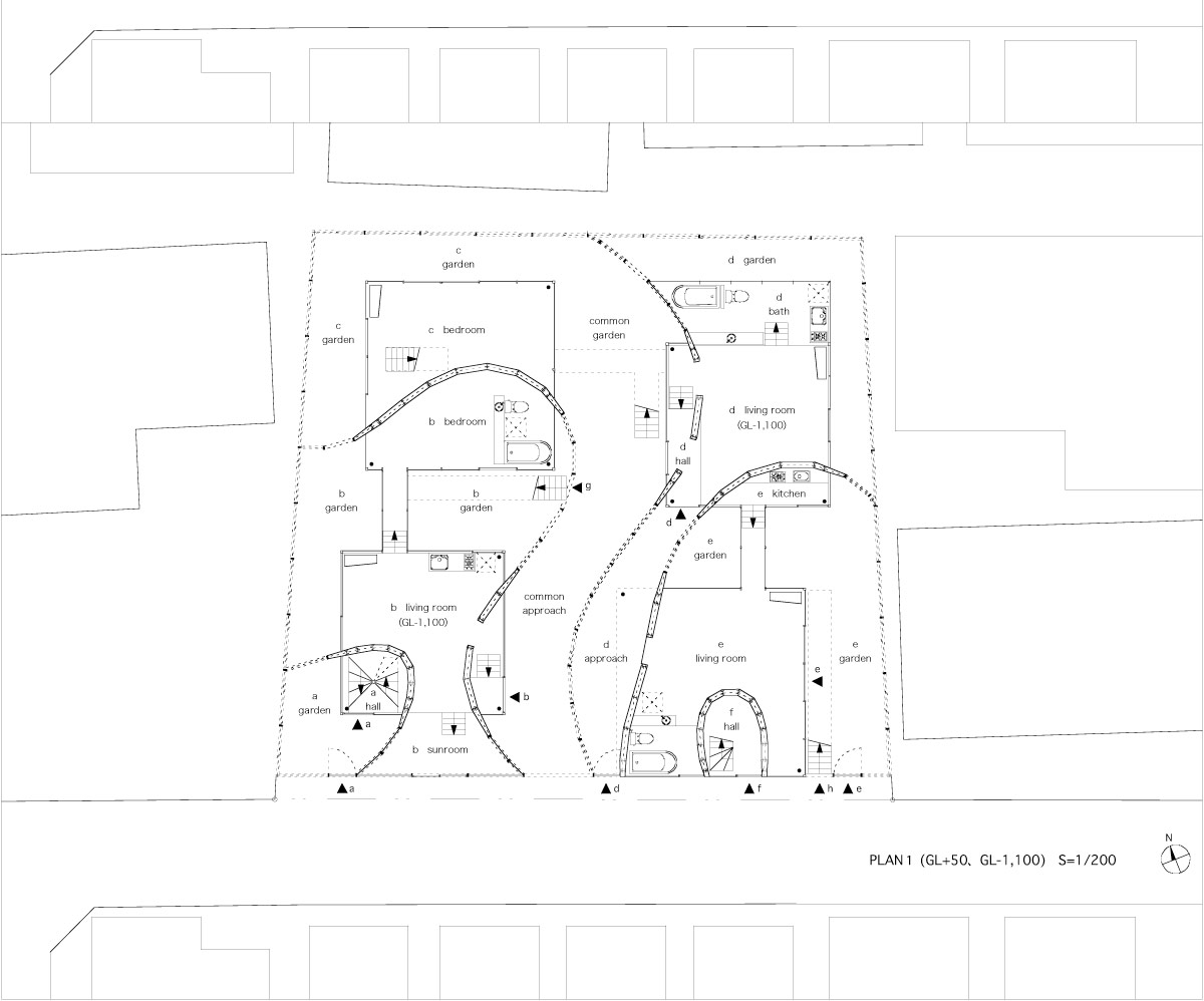
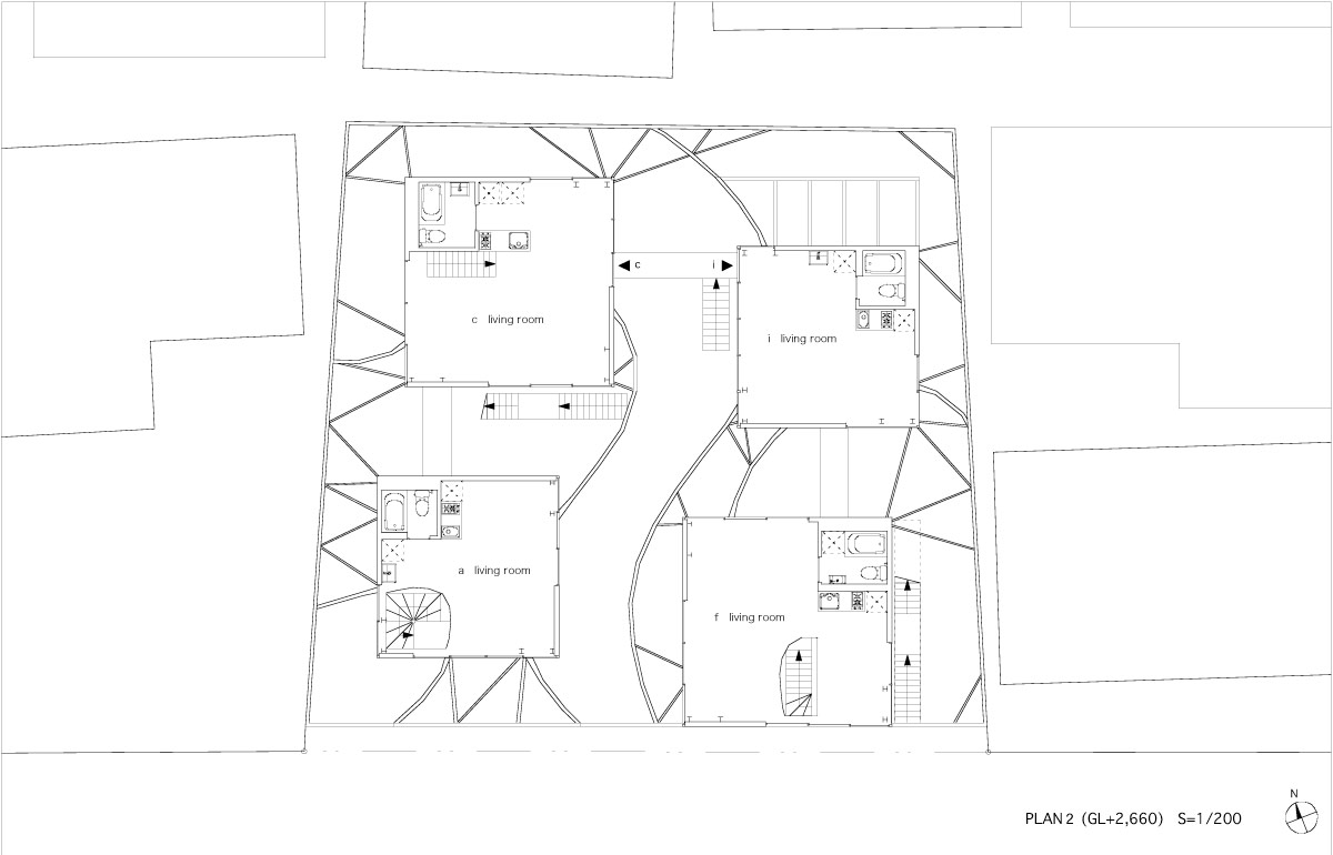
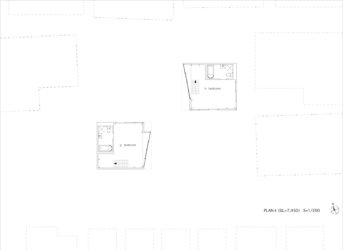
takeshi yamagata architects have shared images with us of a smartly composed complex in tokyo; apartment in kamitakada is actually composed for four separate buildings linked by open-air pathways and clear lines of site afforded by generous glazing. the consolidated structure contains an impressive 9 units with an area from 30 square meters to 6o square meters.  the individual flats are divided by a series of curved walls that serve to create a network of private entrances enlivened by subtle gardens. while the heavily windowed spaces invite in the oft-charming downtown density of tokyo, ample daylight and ventilation pervade the numerous levels and give the residences an air of urban refuge. this is an architecture that resists the typical cramping of urban living with elegant tectonic decisions and choice apertures. 

 

 

 

apartment in kamitakada houses nine flats in one complex
four-in-one: apartment in kamitakada resists tokyo density

 

 

apartment in kamitakada houses nine flats in one complex
four-in-one: apartment in kamitakada resists tokyo density

 

 

apartment in kamitakada houses nine flats in one complex
four-in-one: apartment in kamitakada resists tokyo density

 

 

apartment in kamitakada houses nine flats in one complex
four-in-one: apartment in kamitakada resists tokyo density

 

 

apartment in kamitakada houses nine flats in one complex
four-in-one: apartment in kamitakada resists tokyo density

 

 

apartment in kamitakada houses nine flats in one complex
four-in-one: apartment in kamitakada resists tokyo density

 

 

apartment in kamitakada houses nine flats in one complex
four-in-one: apartment in kamitakada resists tokyo density

 

 

apartment in kamitakada houses nine flats in one complex
four-in-one: apartment in kamitakada resists tokyo density

 

 

apartment in kamitakada houses nine flats in one complex
four-in-one: apartment in kamitakada resists tokyo density

 

1/13
apartment in kamitakada resists tokyo density
 
apartment in kamitakada resists tokyo density
 
apartment in kamitakada resists tokyo density
 
apartment in kamitakada resists tokyo density
 
apartment in kamitakada resists tokyo density
 
apartment in kamitakada resists tokyo density
 
apartment in kamitakada resists tokyo density
 
apartment in kamitakada resists tokyo density
 
apartment in kamitakada resists tokyo density
 
apartment in kamitakada resists tokyo density
 
apartment in kamitakada resists tokyo density
 
apartment in kamitakada resists tokyo density
 
apartment in kamitakada resists tokyo density