KMR Architects designs a house in Takasaki, Japan

 

Design studio KMR・Architects takes over the reconstruction of a residential project planting an arched pergola in the Takasaki region, Japan. The house located in Gunma Prefecture stands along a road slightly off a major highway surrounded by countryside of fields and rice paddies, dotted with farmhouses. Positioned in a regulated area, the building pops up in the rural scenery as a new structure set up in simple form and materiality. The plan aims for a low-cost yet high-performance design framing a simple three-part configuration.

 

The building is composed of three simple sections. The outer part of the building is open to the outdoors forming a larger floor area, while the inner part arranges a private room with a smaller plan. The scheme of the main structure retains the number of rooms with limited functions to a minimum, creating a one-room space. The third part builds up the outdoor pergola assembled in curved and arched formations. The facades apply metal sheets over the framework, while a system of structural plywood slabs, adjusted according to the angle of the summer solstice, covers the exposed outdoor zone. A set of intransparent curtains regulates solar radiation preserving intimacy and privacy when needed.

arched pergola loops over residential construction in japan covered in sheet metal
all images by ©usagitocamera

 

 

low-cost solutions put up a high-performative structure

 

‘The keywords of rationality, generality, and simplification are preceded in the design’, shares the design team at KMR・Architects. Although the floor space is limited by the conditions of the renovation, the design opts for a generous architectural gesture filling the entire site. Following a flexible transformation with the intention of future changes, the configuration groups living functions in the center of the interior, while setting up the south facade as a wide frontage opening securing angled sunlight distribution from the edges of the frame. To avoid limiting the floor area the structure shapes a sunken plane to obtain natural illumination through the second level. The arched pergola construction defines the outdoor frame of the exposed open zone. The louver system serves as an important architectural element responsible for controlling the amount of sunlight entering the interior and exterior grounds. Structural plywood applied in the construction responds to the weather conditions and the heavy curtains enclose the area into a private courtyard.

arched pergola loops over residential construction in japan covered in sheet metal
a set of intransparent curtains regulates privacy or exposure according to the users’ needs

arched pergola loops over residential construction in japan covered in sheet metal
the building pops up in the rural scenery as a new structure set up in simple form and materiality

arched pergola loops over residential construction in japan covered in sheet metal
the facades apply metal sheets over the framework along with the plywood louvers and intransparent curtains

arched pergola loops over residential construction in japan covered in sheet metal
arched pergola loops over residential construction in japan covered in sheet metal
arched pergola japan
arched pergola japan
arched pergola japan

 

 

1/4
axonometric drawing
axonometric drawing
axonometric drawing of the framework
axonometric drawing of the framework
section
section
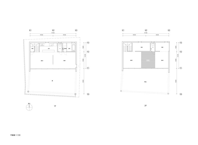
plans
plans

project info:

 

name: Rebuild of KOYAGI
designer: KMR・Architects | @kmr_architects

location: Takasaki, Gunma, JAPAN

photography: usagitocamera | @usagitocamera

 

 

designboom has received this project from our DIY submissions feature, where we welcome our readers to submit their own work for publication. see more project submissions from our readers here.

 

edited by: christina vergopoulou | designboom