
the interiors express a celebration of exposed concrete

the apartment occupies ‘one of the few urban voids in the center of Porto’
KEEP UP WITH OUR DAILY AND WEEKLY NEWSLETTERS
snøhetta wins an international competition to design the qiantang bay art museum for the riverfront of hangzhou.
the project will make its debut during the 2026 winter olympics in milan, and will then be moved to its permanent location in the alps to serve as a safe resting point for climbers and trekkers.
a system of platforms endlessly reshapes the exhibition spaces within the restored shell of the former grands magasins du louvre.
bjarke ingels' faith park in tirana will celebrate spiritual diversity with a series of pavilions and gardens along the albanian hillside.
images ©
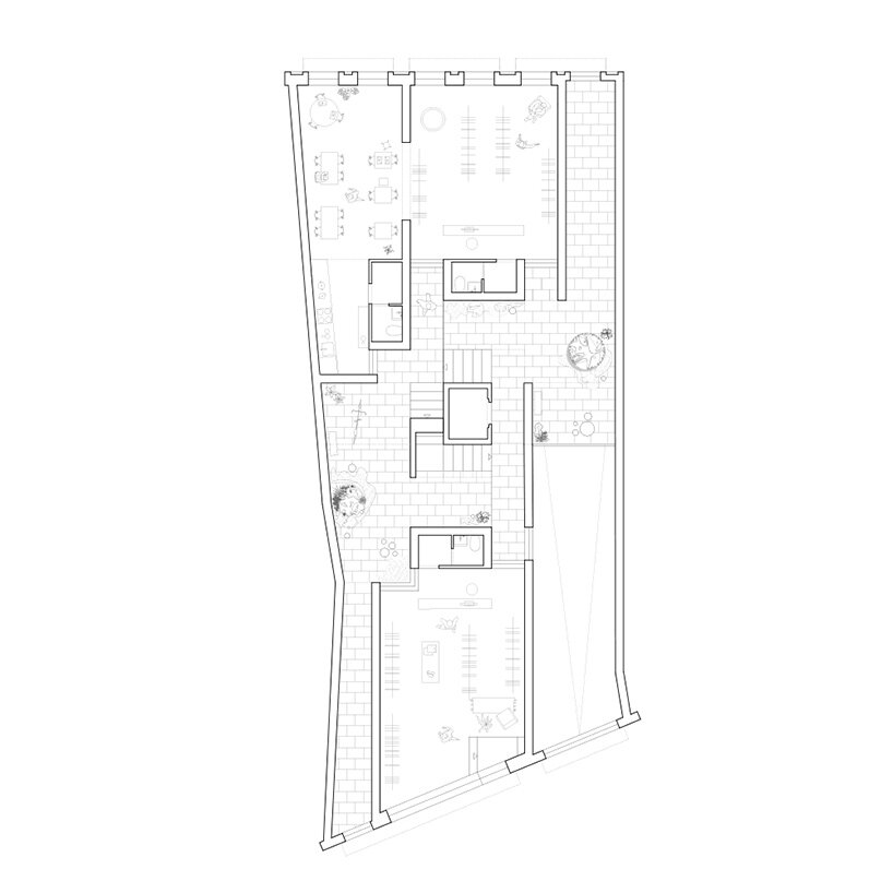
commercial programming occupies the ground level with housing above
the interiors show dramatically sloping ceilings to recall the plot’s previous buildings
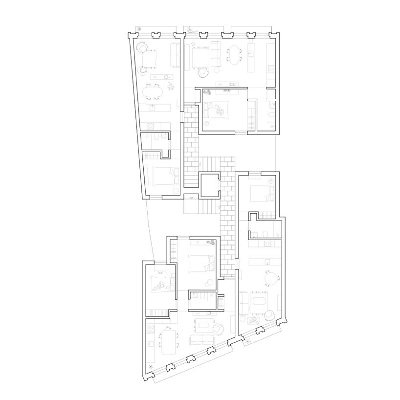
four apartments are distributed across each floor
the new building features full-height windows and historic facade elements







