
KEEP UP WITH OUR DAILY AND WEEKLY NEWSLETTERS
opening in april 25th, 2026, inside palazzo pisani moretta, the exhibition brings together fashion, art, and collectible design.
connections: +1720
five finalist designs are unveiled for the 'shift landmark', an ambitious project for a growing waterfront district in rotterdam.
the milestone positions the cross as the highest point of the basilica and finalizes the grouping of its six central towers.
designed by snøhetta, the 'qasr alhokm' metro station brings a vast reflective canopy to the historic center of riyadh.
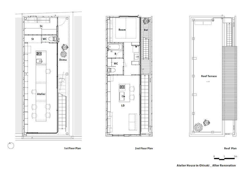
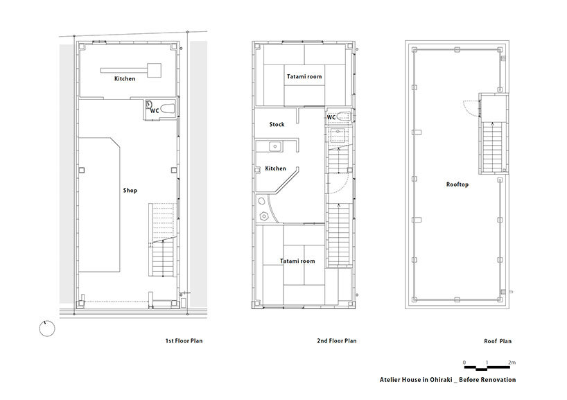
all images courtesy of shigeo ogawa, yasuhiro nakayama













