atelier zündel cristea completes a residential care home in paris
image © sergio grazia

 

 

 

in paris’ 14th arrondissement, local studio atelier zündel cristea (AZC) has constructed a residential care home that seeks to comfortably integrate an aging population with the larger city. consequently, the project pays close attention to the way it fits into the site, its internal layout and proportions, and the choice of material finishes.

atelier zundel cristea AZC residential care home nursery paris designboom
the care home is joined by a nursery that accommodates 64 children
image © sergio grazia

 

 

 

alongside the 98-bed facility for senior citizens, the first stage of the overall development also includes a nursery that can accommodate 64 children. phase two, due for completion in 2017, will see the construction of a nursing home for disabled patients at the northern corner of the site.

atelier zundel cristea AZC residential care home nursery paris designboom
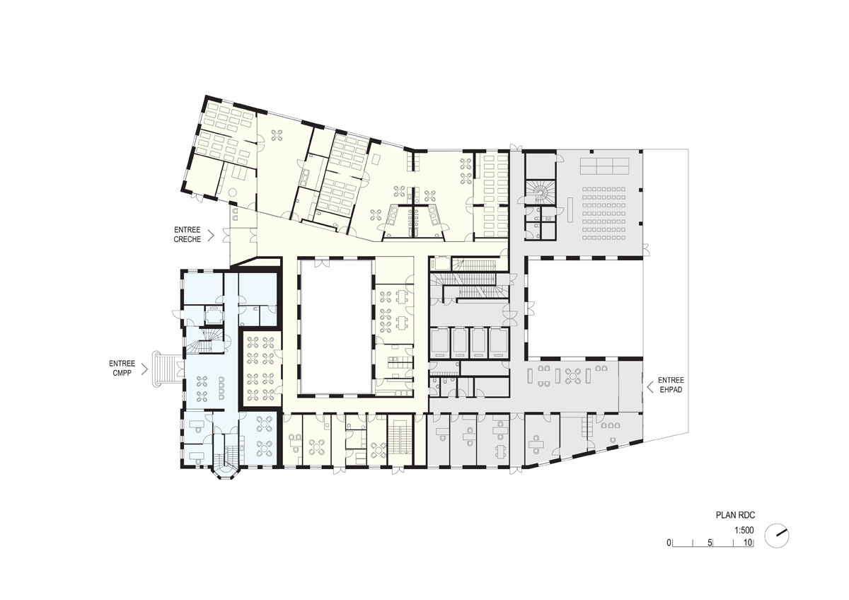
the ground floor is reserved for entrance areas and public spaces
image © sergio grazia

 

 

 

the project involved a comprehensive rethink of the site, with access routes revised and a second entrance added. the six-storey complex comprises wide floors arranged around two internal courtyards, while the architecture’s domestic appearance deliberately distances the scheme from the more functional and sterile image of a hospital.

atelier zundel cristea AZC residential care home nursery paris designboom
communal areas are found at the building’s recessed third storey
image © sergio grazia

 

 

 

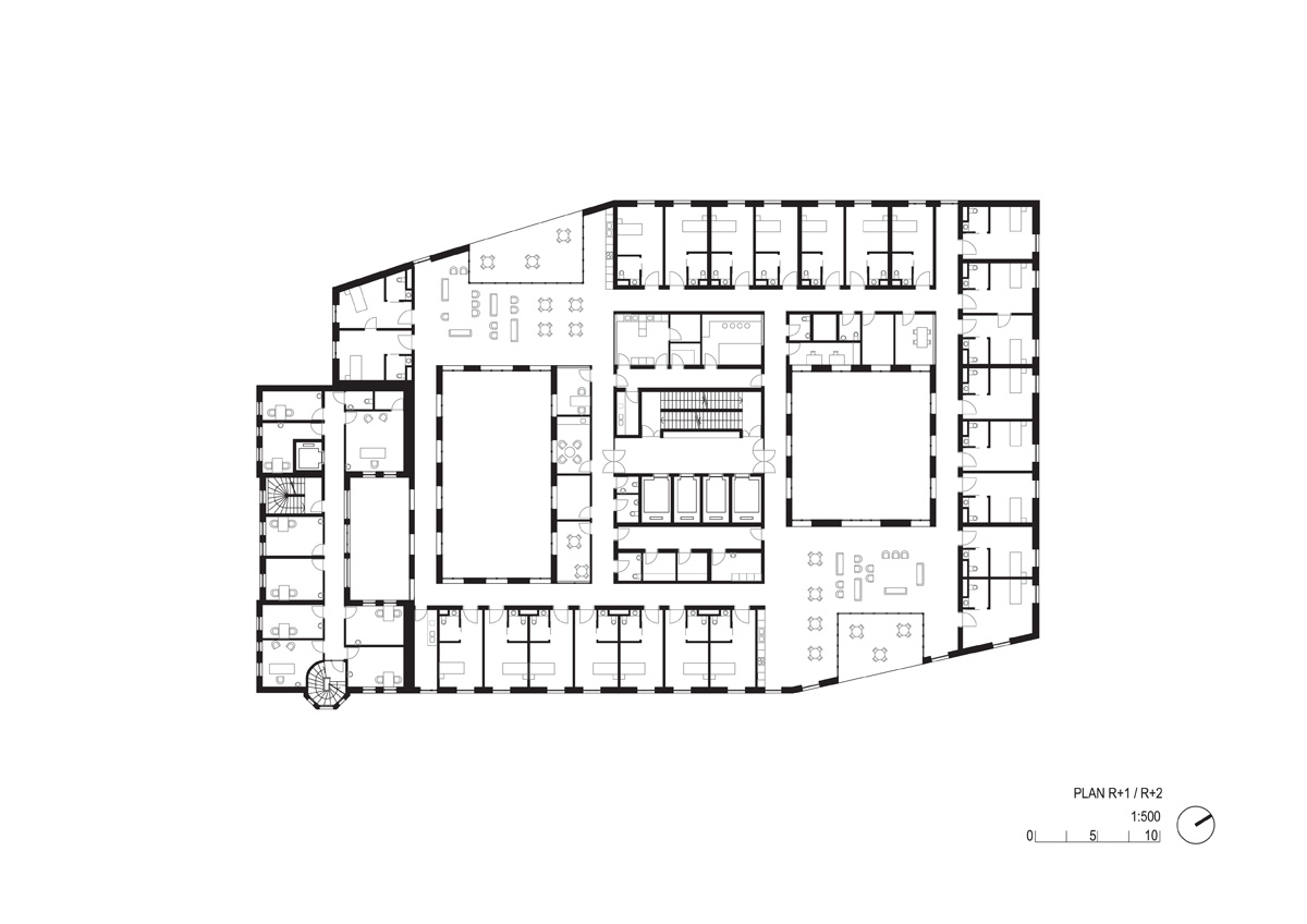
the ground floor is reserved for entrance areas, public spaces and the nursery, with inhabitable units spread across the first, second, fourth and fifth floors – distributed around the perimeter of the plan. communal areas are found at the building’s recessed third storey, appearing as a horizontal break in the otherwise monolithic façade.

atelier zundel cristea AZC residential care home nursery paris designboom
the third level appears as a horizontal break in the otherwise monolithic façade
image © sergio grazia

 

 

 

residential accommodation is broken up into units of 12 to 14 beds. this scale not only enables efficient spatial organization, but also improves working conditions for the carers as well as the daily life of the residents. each unit features an open kitchen, a dining room and a sitting-room that opens out onto a sheltered terrace.

atelier zundel cristea AZC residential care home nursery paris designboom
image © sergio grazia

atelier zundel cristea AZC residential care home nursery paris designboom
the six-storey complex comprises wide floors arranged around two internal courtyards
image © sergio grazia

atelier zundel cristea AZC residential care home nursery paris designboom
the third storey features an external circulation route
image © sergio grazia

atelier zundel cristea AZC residential care home nursery paris designboom
image © sergio grazia

atelier zundel cristea AZC residential care home nursery paris designboom
light-filled communal spaces within the care home
image © sergio grazia

atelier zundel cristea AZC residential care home nursery paris designboom
a domestic appearance distances the scheme from the more functional and sterile image of a hospital
image © sergio grazia

 

drawings

1/8
atelier zundel cristea AZC residential care home nursery paris designboom
 
atelier zundel cristea AZC residential care home nursery paris designboom
 
atelier zundel cristea AZC residential care home nursery paris designboom
 
atelier zundel cristea AZC residential care home nursery paris designboom
 
atelier zundel cristea AZC residential care home nursery paris designboom
 
atelier zundel cristea AZC residential care home nursery paris designboom
 
atelier zundel cristea AZC residential care home nursery paris designboom
 
atelier zundel cristea AZC residential care home nursery paris designboom