babled nouvet reynaud epinay elementary school
photo © frederic delangle
all images courtesy of babled nouvet reynaud architectes

 

 

 

the extension and renovation of the ‘romain rolland elementary school’, by babled nouvet reynaud architectes, serves as an urban renewal effort for the city of epinay, france. the scheme encloses an open recreation space with two-storey building volumes on the north and east sides, and green landscapes on the south and west ends. the elevations facing the central courtyard contain expansive sliding windows, which provide views of vegetated areas across the site. elsewhere, fenestration is carefully located with recessed and angled frames, which direct views and daylight entry. in an attempt to reference the stone cladding of the existing facility, dyed concrete panels were utilized and create a horizontally banded pattern around the façades.

babled nouvet reynaud epinay designboom

the project accompanies an existing school, which is located in the left foreground in the above image
photo © frederic delangle

babled nouvet reynaud epinay designboom

the building’s cladding is composed of horizontally banded concrete panels
photo © frederic delangle

babled nouvet reynaud epinay designboom

the north elevation’s ground floor doors and windows are distinguished by large protruding frames
photo © frederic delangle

babled nouvet reynaud epinay designboom

windows are often recessed and angled to direct views and daylight entry
photo © frederic delangle

babled nouvet reynaud epinay designboom

photo © frederic delangle

babled nouvet reynaud epinay designboom

wide window and door openings face toward the central playground
photos © frederic delangle

babled nouvet reynaud epinay designboom

a covered outdoor area provides shelter from weather adjacent to the courtyard
photo © frederic delangle

babled nouvet reynaud epinay designboom

photos © frederic delangle

babled nouvet reynaud epinay designboom

photo © frederic delangle

 

1/8
plan-1-designboom
 
plan-2-designboom
 
section-longitudinal-designboom
 
section-transverse-designboom
 
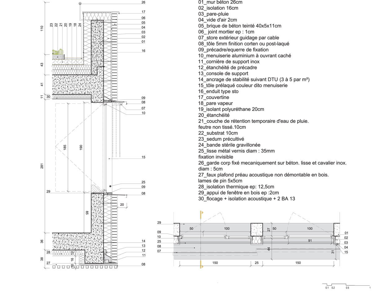
section-window1-designboom
 
section-window2-designboom
 
section-window3-designboom
 
site-plan-designboom
 

 

 

 

project info:

 

location: epinay sur seine
client: city of epinay sur seine
architect: babled nouvet reynaud architectes
area: 1,700 sqm
cost: 4.17 million euros
completed: 09.2013