señor is an award-winning croatian advertising agency. in its several years of existence, the agency has constantly grown, recently moving into a larger office in the center of zagreb. the need for more room gave it an opportunity to create a workspace that expresses all that señor stands for. the interior design is the work of architects dora lončarić, saša košuta and mario kralj from the BIRO architectural office in association with señor.

BIRO designs advertising agency in zagreb with environments fit for creative moments
the señor sign in one of its recognizable color palette
all images by damir žižić

 

 

croatian based architectural office BIRO‘s basic concept for the advertising agency was to create different areas in the space in which the creative and casual moments of the workplace’s everyday life take place. in a spacious apartment of lustig building, created by the famous croatian architect viktor kovačić, several interesting spatial units were created, while respecting the essence of an early 20th century bourgeois apartment.

BIRO designs advertising agency in zagreb with environments fit for creative moments
the boundary between the two zones is an enfilade extended to infinity by the incorporation of mirrors

 

 

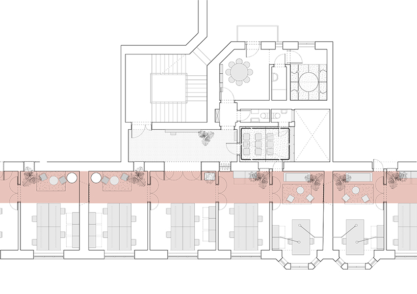
work assignments in the office change throughout the day, so there is a need for different working zones. the types of workspace are indicated by color. each of the rooms for desk work is detached with a clear border — white is the ‘classic’ computer work area, while the niche is pink, inspired by señor’s color palette. the cozy niches are furnished with sofas and rex kralj armchairs for more relaxed work and creative meetings.

BIRO designs advertising agency in zagreb with environments fit for creative moments
the cozy niches are furnished with sofas and rex kralj armchairs for more relaxed work and creative meetings

 

 

the boundary between the two zones is an enfilade, a typical element of a bourgeois dwelling, extended to infinity by the incorporation of mirrors on the opposing sides. BIRO’s newly designed office is filled with plants that, apart from aesthetic purposes, also have proven to be beneficial for air purification. it is a ‘healthy’ work environment in every sense of the word.

BIRO designs advertising agency in zagreb with environments fit for creative moments
the types of workspace are indicated by color

 

 

there are some unconventional areas in the office, too. a monochromatic blue room covered in fluffy tapestry from floor to ceiling is an additional space for ‘different’ work. it has been designed for individual work, small meetings, skype calls or a simple rest. its alternative purpose is that it comes in handy as a large hidden storage area for office supplies.

BIRO designs advertising agency in zagreb with environments fit for creative moments
plants and other accessories give personality to white working spaces

 

 

instead of an ordinary conference room for presentations, BIRO has designed in just a few square meters a tiny cinema called señor miniplex cinema. the elements of cinema are applied in reduced forms — red curtains, cinema armchairs and a black carpet on the floor.

BIRO designs advertising agency in zagreb with environments fit for creative moments
each of the rooms for desk work is detached with a clear border — white is the ‘classic’ computer work area

 

 

in señor they believe that an amusing and stimulating environment plays a role in the creative process. also, a good style will always be immune to changes in trends. ‘the philosophy of effectiveness and the creation of new and innovative solutions, which is a kind of a spiritus movens of our agency, had to be visible in the decor. we don’t like to play it safe, so we tried to create a functional space that has interesting architectural solutions. it reminds us that creativity thrives in different fields of human creation, not just the advertising’.

BIRO designs advertising agency in zagreb with environments fit for creative moments
areas for computer work are white, clean and simple, with as little distractions as possible

BIRO designs advertising agency in zagreb with environments fit for creative moments
in señor they believe that an amusing and stimulating environment plays a role in the creative process

BIRO designs advertising agency in zagreb with environments fit for creative moments
the señor miniplex cinema is only a few square meters and includes nine seats

BIRO designs advertising agency in zagreb with environments fit for creative moments
miniplex cinema can be used both for client presentations or afterwork movie marathons

BIRO designs advertising agency in zagreb with environments fit for creative moments
cozy and quiet blue room for brainstorming, skype calls and quick naps

BIRO designs advertising agency in zagreb with environments fit for creative moments
floor plan

 

 

designboom has received this project from our ‘DIY submissions‘ feature, where we welcome our readers to submit their own work for publication. see more project submissions from our readers here.

 

edited by: apostolos costarangos | designboom