taller david dana arquitectura interprets a contemporary home for blum showroom
photography by omnis luque

 

 

 

taller david dana arquitectura has presented contemporary interiors in the form of the showroom for blum in mexico. the cubic structure sits among the financial district of sante fe, framed by an ongoing construction site, nearby freeways, and transport. despite its hectic surroundings, the horizontal building epitomizes a peaceful home, filled with current and modern furniture. the composition, with its vertical lines and horizontal planes is represented by the use of concrete and timber, coupled with a pivoting glass paneled façade.

blum-studio-sante-fe-taller-david-dana-arquitectura-desigboom-02
the horizontal pavilion has made an attracted home for the showroom

blum-studio-sante-fe-taller-david-dana-arquitectura-desigboom-02
open-plan view

blum-studio-sante-fe-taller-david-dana-arquitectura-desigboom-02
a mixture of private and communal spaces are fused together

blum-studio-sante-fe-taller-david-dana-arquitectura-desigboom-02

blum-studio-sante-fe-taller-david-dana-arquitectura-desigboom-02
the living room and kitchen area

blum-studio-sante-fe-taller-david-dana-arquitectura-desigboom-02
contemporary furnishings

blum-studio-sante-fe-taller-david-dana-arquitectura-desigboom-02

blum-studio-sante-fe-taller-david-dana-arquitectura-desigboom-02

blum-studio-sante-fe-taller-david-dana-arquitectura-desigboom-14

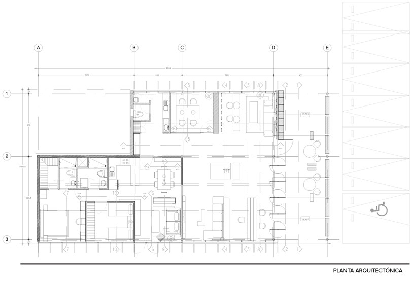
the cubic geometry of the project’s plan

 

type: architecture
status: built
client: geométrica developers
location: prol. paseo de la reforma 489, colonia lomas de san
ta fe, delegación álvaro obregón, méxico, d.f.
year: 2015
area: 222 sqm
team: david dana cohen
photography: omnis luque