bojaus arquitectura serve a suburban alternative with casa H
all photos by joaquín mosquera
all images courtesy of idearch studio

 

 

 

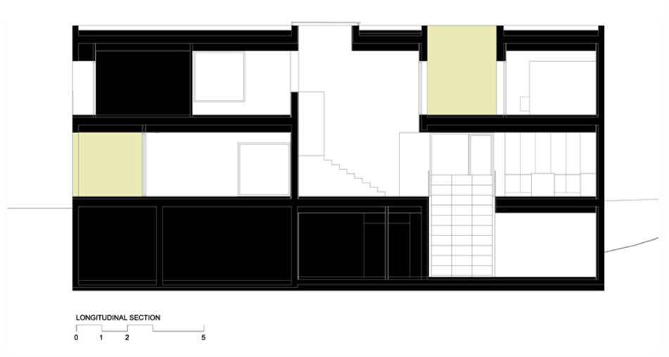
in las rosaz, a surburb of madrid, bojaus arquitectura has constructed a distinctive dwelling unlike the typical single family units familiar to the region. the ‘casa H’ has a contemporary form more common of a japanese-style house, and is fairly open, with large windows that merge the interior and exterior. the building’s parti offers a continuous space that becomes flooded by natural light. since neighboring plots are close in proximity, the need for a certain degree of privacy while in accordance to the client’s desire of overall freedom, was addressed by designers ignacio senra and elisa sequeros. bojas arquitectura provided spaces recessed into the building, allowing these areas to be shelled out from the structure. the home follows strict local urban regulations, but still grants quite a bit of flexibility in the layout of the floor plans. the result is a simple prism-shaped form, measuring 20x9x9 meters. big hollow voids, such as a central patio, generate the interior space of ‘casa H’. rooms are fairly interchangeable in their functionality and are all related to one another visually, through a series of divisions such as gaps or a placed windows. aligned with the north façade, the assortment of spaces are linked by stairs illuminated with skylights.

casa_h_bojaus_arquitectura_designboom02
a minimal approach and lack of exterior detailing marks ‘casa h’ in the neighborhood of las rosaz

 

casa_h_bojaus_arquitectura_designboom03
the open windows give an airy feel to the building as a whole

 

casa_h_bojaus_arquitectura_designboom04
a gate parallel to the street creates a more private environment

 

casa_h_bojaus_arquitectura_designboom05
exterior patio spaces connect to the interior by seamless partitions

 

casa_h_bojaus_arquitectura_designboom06
a central gathering room on the first floor

 

casa_h_bojaus_arquitectura_designboom07
the dining area also takes advantage of the large square windows that frame surrounding nature

 

casa_h_bojaus_arquitectura_designboom08
white finishes to the walls and the floor unify the space as a stair leads to the second floor

 

casa_h_bojaus_arquitectura_designboom09
hallowed spaces are protected by glass for safety

 

casa_h_bojaus_arquitectura_designboom10
an abundance natural light fill each room

 

1/12
casa_h_bojaus_arquitectura_designboom11
 
casa_h_bojaus_arquitectura_designboom12
 
casa_h_bojaus_arquitectura_designboom13
 
casa_h_bojaus_arquitectura_designboom14
 
casa_h_bojaus_arquitectura_designboom15
 
casa_h_bojaus_arquitectura_designboom17
 
casa_h_bojaus_arquitectura_designboom18
 
casa_h_bojaus_arquitectura_designboom19
 
casa_h_bojaus_arquitectura_designboom20
 
casa_h_bojaus_arquitectura_designboom31
 
casa_h_bojaus_arquitectura_designboom33
 
casa_h_bojaus_arquitectura_designboom31_0
 

 

project info:

 

project title: casa H / house H
location: las rozas, madrid
architect: bojaus arquitectura
designers: ignacio senra and elisa sequeros
building eng:  virginia láinez
structure: israel bartolomé
client: bojaus
builder: pecsa
construction dates: feb. 2012 – feb. 2013
cost: 480.000 €
built area: 556m2
furniture: qbika
photography: joaquín mosquera, from impresionesdearquitectura (idearch)