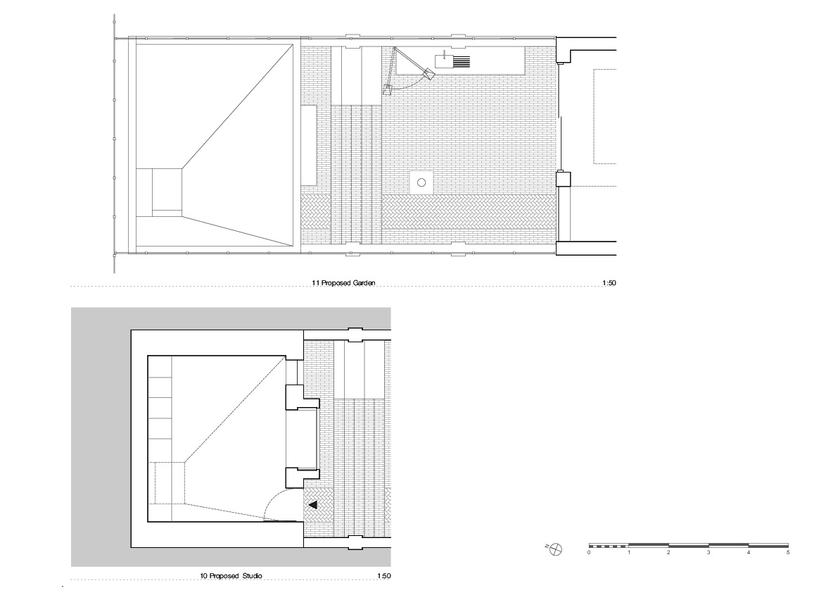
nicknamed the ‘brexit bunker’, this 15 square meter studio in the garden of a london property provides a calming retreat from the hectic outside world. conceived by RISE design studio, the building extends the home’s program without interfering with its existing architecture. ‘the garden studio sits, or rather nests, at the rear of a small garden connected by a patio paved in clay pavers, a contemporary addition but inline with the reclaimed bricks used for the garden walls,’ explains the design team.

the 'brexit bunker' is an oasis of calm in north-west london
all images by edmund sumner

 

 

the project’s architect, RISE design studio, was tasked with creating a habitable structure that stood in complete contrast to the main house. inspired by the railway lines that border the property, the highly insulated building has been clad with black mild steel that was left to weather naturally. ‘the design of the external elements is centered around a desire to create a raw aesthetic that ties the entire garden together,’ the architects continue.

the 'brexit bunker' is an oasis of calm in north-west london

 

 

inside the space, which the client jokingly calls the ‘brexit bunker’, a warm and welcoming atmosphere is achieved thanks to carefully positioned apertures and the use of birch plywood. ‘a series of units work as storage as well as spanish steps that lead towards the rooflight, under which one can relax surrounded by the sounds of birds without any visual hint that they are in the city instead of the country, a place of sanctuary,’ says RISE design studio.

the 'brexit bunker' is an oasis of calm in north-west london

the 'brexit bunker' is an oasis of calm in north-west london

the 'brexit bunker' is an oasis of calm in north-west london

the 'brexit bunker' is an oasis of calm in north-west london

the 'brexit bunker' is an oasis of calm in north-west london

the 'brexit bunker' is an oasis of calm in north-west london

the 'brexit bunker' is an oasis of calm in north-west london

the 'brexit bunker' is an oasis of calm in north-west london

the 'brexit bunker' is an oasis of calm in north-west london

the 'brexit bunker' is an oasis of calm in north-west london

 

 

1/3
RISE design studio brexit bunker london designboom
 
RISE design studio brexit bunker london designboom
 
RISE design studio brexit bunker london designboom
 

project info:

 

name: brexit bunker
location: london, UK
architect: RISE design studio, with CAR ltd
size: 15 sqm / 161 sqf
budget: £105,000
completion date: 2019
photography: edmund sumner