KEEP UP WITH OUR DAILY AND WEEKLY NEWSLETTERS
chilean architect smiljan radić clarke receives the 2026 pritzker architecture prize for his atmospheric, material-driven architecture.
connections: 40
opening in april 25th, 2026, inside palazzo pisani moretta, the exhibition brings together fashion, art, and collectible design.
connections: +1720
five finalist designs are unveiled for the 'shift landmark', an ambitious project for a growing waterfront district in rotterdam.
the milestone positions the cross as the highest point of the basilica and finalizes the grouping of its six central towers.

the penthouse’s exterior wall is setback from the boundary of the structure below image ©
(left) penthouse peaks above existing structure (right) penthouse is not visible from the street images ©
aerial view of penthouse image courtesy of brian meyerson architects
entrance to roof terrace image ©
kitchen image ©
living area and kitchen image ©
fireplace image ©
ceiling detail with crevices to introduce natural light image ©
(left) water closet door closed (right) water closet door open image ©
desk area illuminated by skylight image ©
desk area and central stair image ©
(left) central stair (right) circular skylight above stair images ©
(left) linear skylight above swimming pool (right) horizontal ribbon window along pool images ©
pool image ©
(left) bathroom (right) bathroom images ©
at night image ©
site plan image courtesy of brian meyerson architects
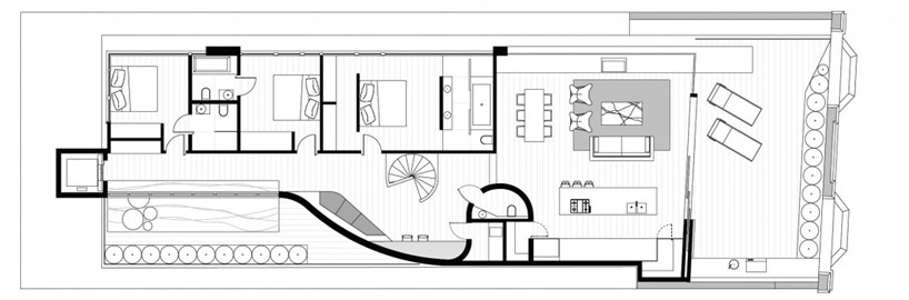
floor plan image courtesy of brian meyerson architects
section image courtesy of brian meyerson architects
elevation image courtesy of brian meyerson architects