CAMPout: faulkner architects' modern mountain retreat at lake tahoe, california

CAMPout: faulkner architects' modern mountain retreat at lake tahoe, california

a family retreat tucked away in the pines

 

California-based architecture firm Faulkner Architects unveils CAMPout, a unique dwelling in the Sierra Nevada Mountains. A family had approached the firm, hoping to expand their existing property situated on a north-facing slope, which offered stunning views of the Martis Valley and Lookout Mountain, screened by 100-year-old Jeffrey pine trees.

 

In our world today, much of the built work is driven by visual appearance,write the architects.Symbolic forms and arbitrary material deployment remind us of our history. Usually, these collages of comfort for the eye ignore their contexts that should affect the work in a tangible way.’

 

Faulkner Architects’ approach stands out for its comprehensive rigor and consistent deployment of materials based on building-sized decision making. The firm took into account the surrounding context, using a material palette inspired by the basalt boulders and sugar pines that covered the forest floor, creating a sense of calm and connection for the whole assemblage and ultimately the family.

CAMPout faulknerimages © Joe Fletcher@joefletcherphoto

 

 

faulkner architects celebrates the wild landscape

 

For Faulkner Architects, CAMPout was not without its challenges. While many houses built in the wild lands are at risk of fire, the team was careful to design a structure that minimized this risk. Glazing was limited at the exterior interface with the combustible surroundings, while the courtyard was designed to maximize the amount of natural light and provide a safe connection with the pine forest.

 

CAMPout’s sleeping areas are nestled into the slope, fronted by an intimate courtyard that offers privacy from neighboring properties. The family’s gathering space consists of a concrete pavilion that seamlessly connects the courtyard to the beautiful vista beyond. The interior of the pavilion benefits from an abundance of natural light and views of the ski runs on the mountain thanks to a thin steel shed roof that pitches up towards the south.

 

The home was constructed using double eight-inch concrete walls that were fitted with foam insulation, extending up to the roof on the low side. The space between the roof and concrete walls was enclosed with clerestory windows, forming a triangular shape.

CAMPout faulkner

 

 

campout: a campsite home

 

CAMPout’s fire-resistant barrier is formed by Faulkner Architects’ combination of concrete and steel sash tempered windows, while the interior by NICOLEHOLLIS is made up of unfinished native cedar. To complement the surrounding landscape, basalt floors were selected, which echo the presence of basalt boulders. Blackened steel casework was chosen to match the exposed steel.

 

A glazed access area encircles the courtyard, linking the sleeping rooms and main pavilion to the courtyard and fire, much like a campsite. The furnishings in the building share the same materials and tonal qualities, further emphasizing a subdued presence that allows the stunning landscape to shine.

CAMPout faulkner

 

 

As climate change increases the incidence and magnitude of wildfire events and we continue to reach further into the wild landscape with development,’ the architects continue,we must enhance the construction systems and materials to withstand these disasters. Early consideration of these factors should be considered along with all other contextual attributes. The form can take on a protective posture. Materials can be non-combustible.’

CAMPout faulkner CAMPout faulkner

CAMPout-faulkner-architecture-sierra-nevadas-designboom-06a

CAMPout faulkner

CAMPout-faulkner-architecture-sierra-nevadas-designboom-08a

 

1/9
 
 
 
 
site plan
site plan
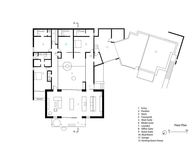
floor plan
floor plan
section
section
passive strategies diagram
passive strategies diagram
CAMPout sketch
CAMPout sketch

project info:

 

project title: CAMPout

architecture: Faulkner Architects@faulknerarchitects
interior designer: NICOLEHOLLIS@nicolehollissf
location: Lake Tahoe, California
photography: © Joe Fletcher@joefletcherphoto

 

faulkner architects design team:
principal: Gregory Faulkner
project architect: Christian Carpenter
project manager: Jenna Shropshire
architect: Ann Darby

 

general contractor: Jim Morrison Construction
structural: CFBR Structural Group
civil: Shaw Engineering
MEP: Sugarpine Engineering
surveyor: Webb Land Surveying, Inc.
geotechnical: Nortech Geotechnical Consultants
title 24: Monterey Energy Group

KEEP UP WITH OUR DAILY AND WEEKLY NEWSLETTERS
suscribe on designboom
- see sample
- see sample
suscribe on designboom

architecture in california (293)

architecture in the US (1651)

faulkner architects (7)

residential architecture and interiors (4730)

X
5