KEEP UP WITH OUR DAILY AND WEEKLY NEWSLETTERS
the airport by MAD spans 2,267 hectares and features a 12,000-square-meter terminal under its feather-like roof.
the spiral structure is built from upcycled lantana camara, an invasive shrub introduced to india through colonial trade routes.
connections: +1000
designboom discusses this creative boom with stefano boeri, MVRDV's winy maas, christian kerez, beat huesler of oppenheim architecture, and the team at bofill taller de arquitectura.
the proposal draws from a historic english architectural feature composed of alternating curves.

the structure makes use of the strong wind and ocean views with exposed scaffoldingimage © leonardo finotti
the site is an old fort flanked by two legendary beaches, copacabana and ipanemaimage © leonardo finotti
rooms both brace the structure and create conference spacesimage © leonardo finotti
entrance view image © leonardo finotti
exhibit spaces are set far apart to blur notions of interior and exteriorimage © leonardo finotti
man and nature meet in the pavilionimage © leonardo finotti
a series of ramps connect the spacesimage © leonardo finotti
views of the informal auditorium dubbed ‘cafe cultural’image © leonardo finotti
the greenery bolsters the impressive pavilionimage © leonardo finotti
the project took four months from conception to completionimage courtesy of carla juaçaba
main passageways installed image courtesy of carla juaçaba
the elevated hall image courtesy of carla juaçaba
image courtesy of carla juaçaba
construction workers seem to float in the scaffolding image courtesy of carla juaçaba
auditorium image courtesy of carla juaçaba
view from the auditorium image courtesy of carla juaçaba
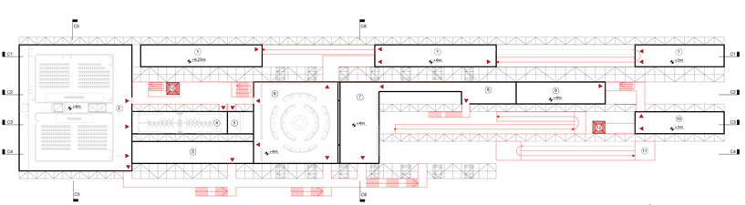
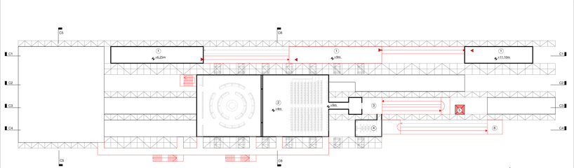
site plan












