‘casa gracia renovation’ by carles enrich, gracia, spain
image © enric fabre
all images courtesy of carles enric

 

 

 

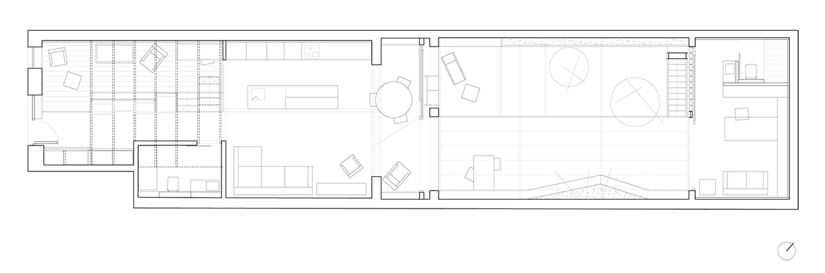
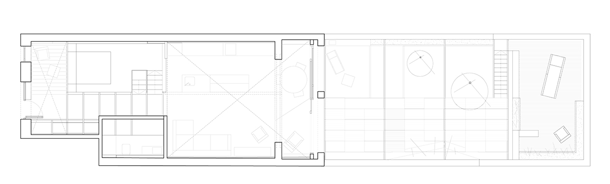
an old dry cleaner’s shop in a narrow site bound by two party walls is seldom the first place one would think of when looking for a place to live. barcelona-based architect carles enrich saw a great potential to convert the space into a contemporary comfortable home for a single family with a young child. because of the lot’s given dimensional limitations, the strategy centered itself on an internal open-air courtyard anchoring an open-plan design. being an overall smaller space, creating a large linear open room allows the interior to breathe, reflecting natural light deep into the rear end of the house and allowing air to be better ventilated throughout – avoiding a cavernous ambiance.  the existing stone masonry walls and brick/wood beam vaulted ceilings were recovered and exposed alongside a newly polished concrete floor and knotted timber planks. a series of black powder coated wide flange beams cradle a loft area enclosed by a bookshelf wall, more like a floating furniture addition than the master bedroom for which it serves. in the courtyard, a pergola of thin steel beams and expanded reeds softens the direct sunlight and acts as a framework that the plants along the walls will eventually consume, creating a private space enclosed within a garden. along the far side of the courtyard where an old storage room used to be, a satellite office is created, serving as a more private work area or guest bedroom.

 

 

carles enrich refurbishes a dry cleaners in spain
image © enric fabre

 

 

carles enrich refurbishes a dry cleaners in spain
image © enric fabre

 

 

carles enrich refurbishes a dry cleaners in spain
image © enric fabre

 

 

carles enrich refurbishes a dry cleaners in spain
image © enric fabre

 

 

carles enrich refurbishes a dry cleaners in spain
image © enric fabre

 

 

carles enrich refurbishes a dry cleaners in spain
image © enric fabre

 

 

carles enrich refurbishes a dry cleaners in spain
elevated bedroom loft
image © enric fabre

 

 

carles enrich refurbishes a dry cleaners in spain
living room
image © carles enric

 

 

carles enrich refurbishes a dry cleaners in spain
exterior courtyard
image © carles enrich

 

 

carles enrich refurbishes a dry cleaners in spain
image © carles enrich

 

 

carles enrich refurbishes a dry cleaners in spain
courtyard at night
image © carles enrich

 

 

 

carles enrich refurbishes a dry cleaners in spain

carles enrich refurbishes a dry cleaners in spain
construction process
image © carles enrich

 

 

carles enrich refurbishes a dry cleaners in spain
original conditions
image © carles enrich

 

 

carles enrich refurbishes a dry cleaners in spain
image © carles enrich

 

 

 

carles enrich refurbishes a dry cleaners in spain

1/4
(\\\\vmware-host\\Shared Folders\\Mi Escritorio\\MOBILIARI HABITACIÓ POL\\HABITACIO POL_PUBLICACIONS publicacions web \(1\))
 
(\\\\vmware-host\\Shared Folders\\Mi Escritorio\\MOBILIARI HABITACIÓ POL\\HABITACIO POL_PUBLICACIONS publicacions web \(1\))
 
(\\\\vmware-host\\Shared Folders\\Mi Escritorio\\MOBILIARI HABITACIÓ POL\\HABITACIO POL_PUBLICACIONS publicacions web \(1\))
 
(\\\\vmware-host\\Shared Folders\\Mi Escritorio\\MOBILIARI HABITACIÓ POL\\HABITACIO POL_PUBLICACIONS publicacions web \(1\))
 

 

 

project info:

 

 

architect: carles enrich
location: gracia, barcelona (spain)
construction: crk
area: 145 sqm
year: 2009 – 2013
end date: febrary 2013
photographs: enric fabre and carles enrich