barcelona-based architect carles enrich has completed ‘gallery-house’, a residential renovation of an early 20th century apartment. the home is located in the dense urban district of gracia, barcelona. the architect has reformulated the historical property into a modern dwelling well-adapted to the mediterranean climate.

carles enrich intertwines interior and exterior for the 'gallery house' in barcelona - 1
the new design ensures views to the exterior courtyard from all parts of the house

 

 

the home acts as ‘a gallery that connects the street with the inner courtyards. a former storage room was repurposed into a music studio while the patio becomes a central circulation device in the plan.

carles enrich intertwines interior and exterior for the 'gallery house' in barcelona - 2
a floating staircase acts as a central feature of the patio

 

 

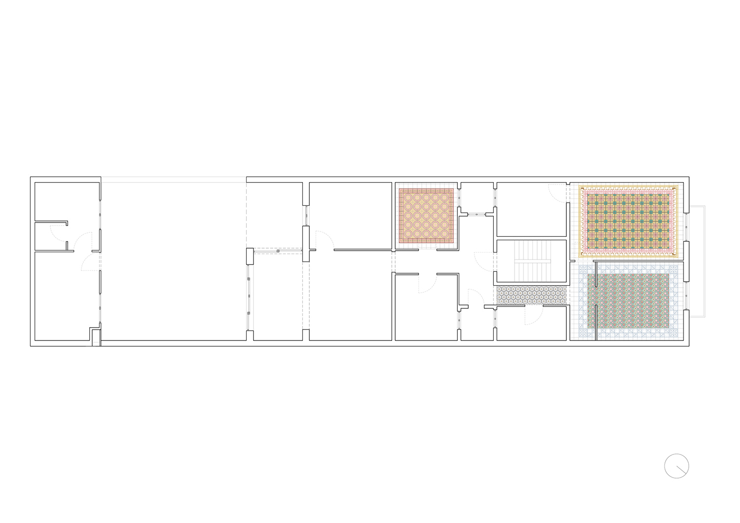
the original dwelling was fragmented into small rooms connected through dark corridors with the outside. the building’s original envelope was altered through a selective demolition wherein 90% of the old tiles and bricks were repurposed. the colorful tiles of the pre-existing house were introduced into the circulation areas, kitchen and bathroom to preserve the ‘material heritage of the home’.

carles enrich intertwines interior and exterior for the 'gallery house' in barcelona - 3
in the courtyard a structure made of steel profiles and ropes is introduced in order to make a seasonal porch

 

 

the second intervention proposes a main space based on the succession of different rooms connected by porticos defined by structural interventions in the load walls. with this intervention the visual depth of the house is enhanced and different circulations are granted. the inhabitants can enjoy views of the street and the inner courtyard from different rooms, blurring the boundaries between domestic and exterior spaces.

carles enrich intertwines interior and exterior for the 'gallery house' in barcelona - 4
the seasonal porch improves climate conditions and allows the use of the patio during the hotter months

 

 

the architects utilized passive design techniques to ensure temperature control throughout the year. the patios offer great conditions of thermal regulation and natural lighting. the extension of the small courtyard in the center of the house and the sequence of porches offers a cross ventilation that helps to cool the apartment in the hottest months. furthermore, the reused brick is employed as a double façade​​, improving thermal inertia and acoustic insulation. a rainwater collection system has also been integrated which will be used to irrigate the planter that will grow into a pergola mixing wisteria with vine and jasmine.

carles enrich intertwines interior and exterior for the 'gallery house' in barcelona - 5
the light internal structure creates a more flexible space for different functions

carles enrich intertwines interior and exterior for the 'gallery house' in barcelona - 6
in a few years the planter will grow into a pergola mixing wisteria with vine and jasmine

carles enrich intertwines interior and exterior for the 'gallery house' in barcelona - 7
the lighting within the home is further supported by passive design techniques

carles enrich intertwines interior and exterior for the 'gallery house' in barcelona - 8
the satin finish of the mosaic offers a bright spot in the most interior areas of the house

carles enrich intertwines interior and exterior for the 'gallery house' in barcelona - 9
the mosaic tiles from the former home preserve the ‘material heritage‘ of the house 

carles enrich intertwines interior and exterior for the 'gallery house' in barcelona - 10
the open circulation allows ventilation and a cool temperature within the home

carles enrich intertwines interior and exterior for the 'gallery house' in barcelona - 11
the architects reused bricks and tiles from the pre-existing residence

carles enrich intertwines interior and exterior for the 'gallery house' in barcelona - 12
floating stair detail

 

 

1/8
galleryhouseenrich001
 
galleryhouseenrich002
 
galleryhouseenrich003
 
galleryhouseenrich004
 
/Users/carles1/Desktop/LAURE/03-RAMON Y CAJAL/6. COMUNICACIÓ/Treball/DWG/plantas-2.dwg
 
/Users/carles1/Desktop/LAURE/03-RAMON Y CAJAL/6. COMUNICACIÓ/Treball/plantas:seccion/DWG/proyecto.dwg
 
/Users/carles1/Desktop/LAURE/03-RAMON Y CAJAL/6. COMUNICACIÓ/Treball/DWG/plantas-2.dwg
 
galleryhouseenrich0010
 

 

 

project info:

 

author: carles enrich
collaborators: adriana campmany, mary kaldiry, laure nicod
structure: masaad estructuras
wood work: ifusta
constructor: pilar hoces
garden: teodora
photography: adrià goula
project: 2015
surface: 185 sqm
work: 2016-2017

Save