
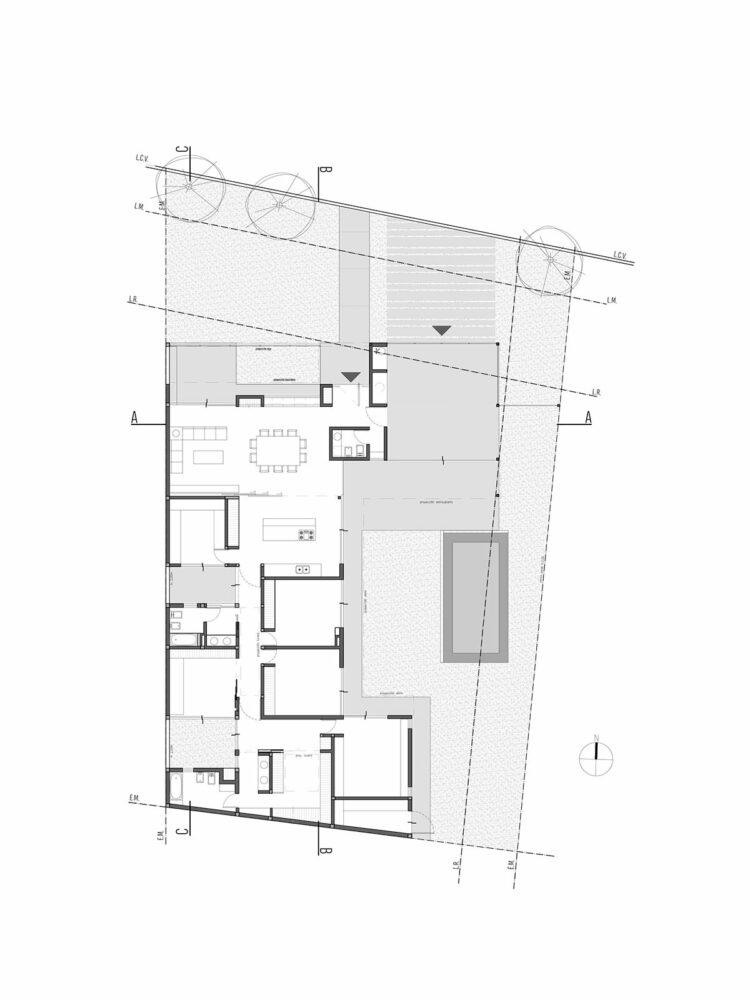
the dwelling is fronted by a private, gardened ‘welcome patio’

exposed concrete, wood, and metal define the lofty spaces across the home
KEEP UP WITH OUR DAILY AND WEEKLY NEWSLETTERS
chilean architect smiljan radić clarke receives the 2026 pritzker architecture prize for his atmospheric, material-driven architecture.
connections: 40
opening in april 25th, 2026, inside palazzo pisani moretta, the exhibition brings together fashion, art, and collectible design.
connections: +1720
five finalist designs are unveiled for the 'shift landmark', an ambitious project for a growing waterfront district in rotterdam.
the milestone positions the cross as the highest point of the basilica and finalizes the grouping of its six central towers.
images © 














