casanova + hernandez architects folds adaptable villas
all images courtesy of casanova + hernandez architects

 

 

 

rotterdam-based studio casanova + hernandez architects has developed three, freestanding houses that can be adapted to suit their occupants needs. a folding wooden wall is used to frame the villas, patios and gardens, creating a series of enclosed spaces with different atmospheres. the flexible structure enables people to not only design the individual housing units themselves but also the private, semi-public and public spaces that surround them. the strategy creates a connection between the dwellings and their environment, while still defining enclosed parts that are sheltered from urban life. a sculptural volume carves out the kitchen, bathrooms and storage rooms, joining onto a double height living room. the interior opens onto the patio, offering a sense of flow to the outdoors during the summertime. the continuous and flexible design enables the buildings to reflect the specific requirements of their users. 

 

casanova-+-hernandez-architects-folding-walls-designboom02
a folding wooden wall defines the buildings and spaces between them

 

casanova + hernandez architects folds adaptable villas
the three detached houses offer a series of enclosed outdoor spaces

 

casanova-+-hernandez-architects-folding-walls-designboom03
the villas connect directly to the outdoor patios

 

casanova + hernandez architects folds adaptable villas
interior view of the double height living room

 

casanova + hernandez architects folds adaptable villas
site plan

 

casanova + hernandez architects folds adaptable villas
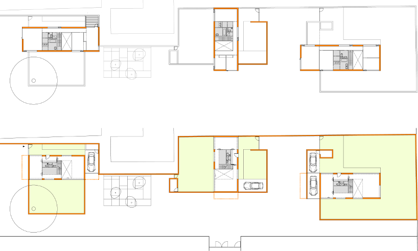
plan

 

casanova + hernandez architects folds adaptable villas
long section

 

casanova + hernandez architects folds adaptable villas
cross section

 

 

casanova + hernandez architects folds adaptable villas
details

 

designboom has received this project from our ‘DIY submissions‘ feature, where we welcome our readers to submit their own work for publication. see more project submissions from our readers here.