in the slovenian town of logatec, dekleva gregorič architects has completed a timber-clad dwelling that celebrates the role of the wood stove. named ‘chimney house’, the property is articulated around the stove’s prominent position, which in turn distributes the home’s other spaces. externally, the building’s form and scale respond to the region’s vernacular architecture, as well as an adjacent 16th century church.

dekleva-gregoric-architects-chimney-house-logatec-slovenia-designboom-02
all images by flavio coddou

 

 

clad with a dark wooden façade, the house — designed by dekleva gregorič architects — relates closely to the neighboring barn structures. however, its distinctive form associates more with the nearby church, establishing a curious dialogue between the two buildings. the ridge of the roof has been pushed apart to create a continuous skylight that runs throughout the residence, providing natural illumination.

dekleva-gregoric-architects-chimney-house-logatec-slovenia-designboom-02
varying in size, square windows perforate the volume

 

 

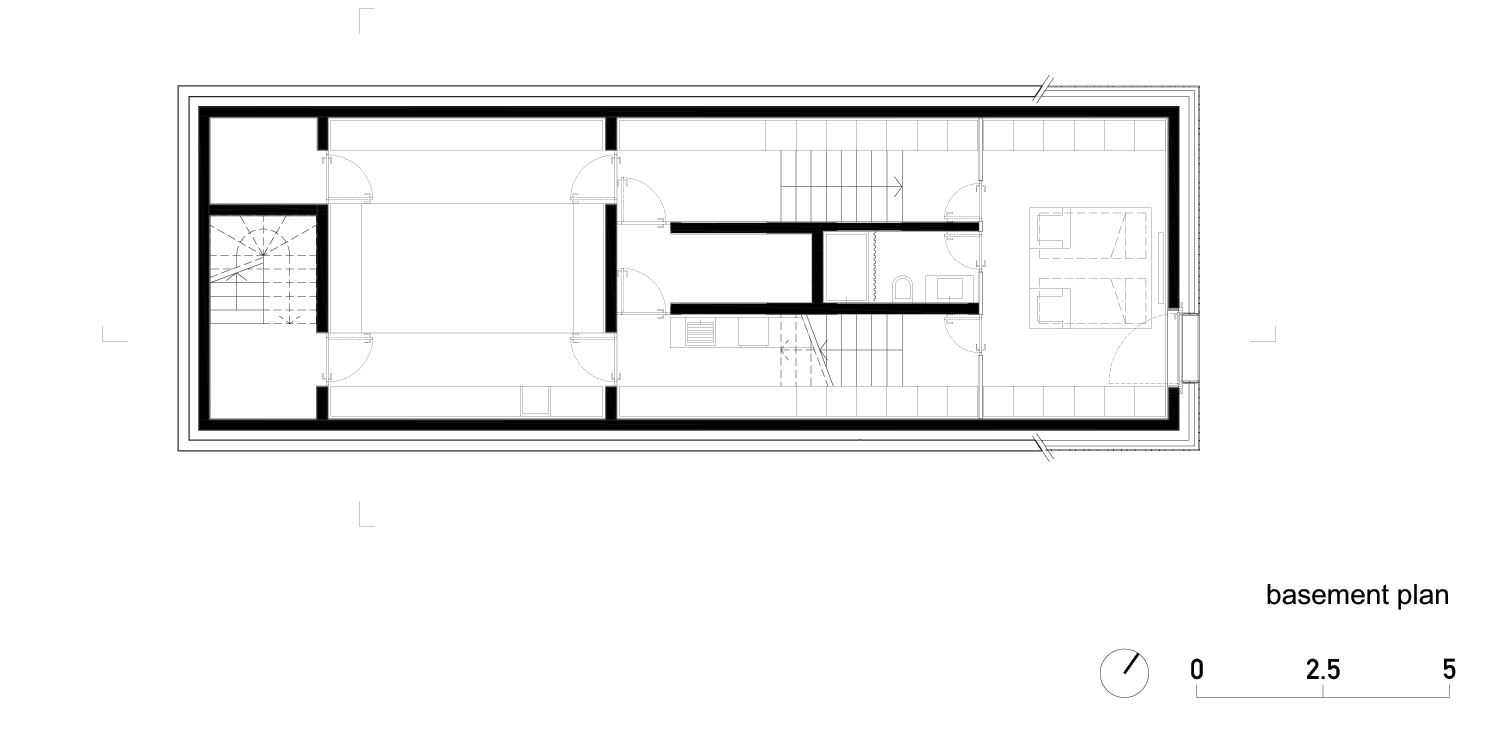
internally, the kitchen is organized around a multifunctional wood stove, which divides the living accommodation from the sleeping quarters. the building’s thick walls integrate multiple storage spaces as well as small inhabitable window niches that welcome light and views. oiled oak has been used across the interior’s floors and walls, while the roof is made from board formed concrete, recalling the timber texture of the external façade.

dekleva-gregoric-architects-chimney-house-logatec-slovenia-designboom-02
the entrance to the two-storey dwelling

dekleva-gregoric-architects-chimney-house-logatec-slovenia-designboom-02
the kitchen is organized around a multifunctional wood stove

dekleva-gregoric-architects-chimney-house-logatec-slovenia-designboom-02
the building’s thick walls integrate multiple storage spaces

dekleva-gregoric-architects-chimney-house-logatec-slovenia-designboom-02
inhabitable window niches welcome daylight and views

dekleva-gregoric-architects-chimney-house-logatec-slovenia-designboom-02
oiled oak has been used across the interior’s floors, walls, and surfaces

dekleva-gregoric-architects-chimney-house-logatec-slovenia-designboom-02
the roof is made from board formed concrete

dekleva-gregoric-architects-chimney-house-logatec-slovenia-designboom-02
the house is located in the slovenian town of logatec

dekleva-gregoric-architects-chimney-house-logatec-slovenia-designboom-02
despite its exposed setting ‘chimney house’ remains a private and secluded residence

 

1/19
dekleva gregoric architects chimney house logatec slovenia designboom
 
dekleva gregoric architects chimney house logatec slovenia designboom
 
dekleva gregoric architects chimney house logatec slovenia designboom
 
dekleva gregoric architects chimney house logatec slovenia designboom
 
dekleva gregoric architects chimney house logatec slovenia designboom
 
dekleva gregoric architects chimney house logatec slovenia designboom
 
dekleva gregoric architects chimney house logatec slovenia designboom
 
dekleva gregoric architects chimney house logatec slovenia designboom
 
dekleva gregoric architects chimney house logatec slovenia designboom
 
dekleva gregoric architects chimney house logatec slovenia designboom
 
dekleva gregoric architects chimney house logatec slovenia designboom
 
dekleva gregoric architects chimney house logatec slovenia designboom
 
dekleva gregoric architects chimney house logatec slovenia designboom
 
dekleva gregoric architects chimney house logatec slovenia designboom
 
dekleva gregoric architects chimney house logatec slovenia designboom
 
dekleva gregoric architects chimney house logatec slovenia designboom
 
dekleva gregoric architects chimney house logatec slovenia designboom
 
dekleva gregoric architects chimney house logatec slovenia designboom
 
dekleva gregoric architects chimney house logatec slovenia designboom
 

 

project info:

 

name: chimney house
architectural office: dekleva gregorič architects
project team: aljoša dekleva, tina gregorič, vid zabel, primož boršič
client: andrej dolenc
site area: 830 sqm
build up area: 145 sqm
net area: 205 sqm
project dates: 2012 – 2016
photography: flavio coddou

Save

Save

Save

Save

Save

Save

Save

Save

Save

Save