S5 design creates a moody punk interior for barber shop in wuxi, china
all images courtesy of S5 design

 

 

 

hexagonal black and white mosaics, stainless steel plate walls, and large circular mirrors are the defining features that characterise the stylish barber shop located in wuxi, china. the salon which was created by S5 design, lead by architect liming sun, uses a palette of luxurious dark textures and colors which form a moody punk edge interior. 

S5 design barber shop wuxi china designboom
the space is characterised by hexagonal black and white mosaics and stainless steel plate walls

 

 

 

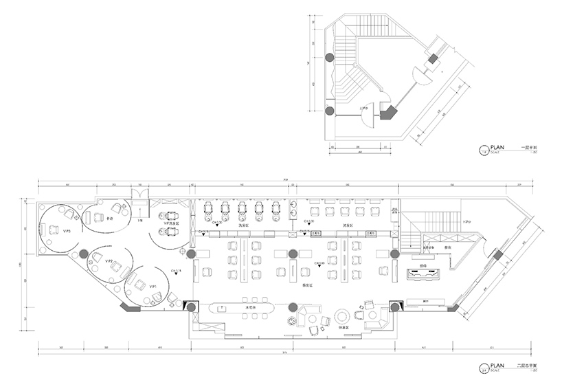
the clean and simple space is divided into various sections through different tiles and patterns. the bright cutting area and rinsing zone are separated by a metal divider which uses hexagonal outlines engraved within its surface. the entrance to the shop uses jarred abstract walls, glass protruding windows and irregular shapes which point towards the basement level of the building. 

S5 design barber shop wuxi china designboom
the clean and simple space is divided into various sections through different tiles and patterns

 

 

 

the main room features rows of tables which all contain a comfortable cube shaped chair and large hanging circular mirror. the reflective surfaces establish a sleek ambiance, which compliments the use of graphic fabric dividers and retro photomontages. an overhanging structure acts as the architectural framework of the space, holding all of the elements together including the chandeliers. the interior aims to cater towards the customers needs by creating an overwhelming visual experience through a decadent display of grunge inspired glamour. 

S5 design creates a moody punk interior for barber shop in wuxi, china - 1
each table provides a comfortable cube shaped chair

S5 design creates a moody punk interior for barber shop in wuxi, china - 2
the reflective surfaces establish a sleek ambiance 

S5 design creates a moody punk interior for barber shop in wuxi, china - 3

S5 design creates a moody punk interior for barber shop in wuxi, china - 4
the rinsing zone

S5 design creates a moody punk interior for barber shop in wuxi, china - 5
the space is separated by graphic room dividers

S5 design creates a moody punk interior for barber shop in wuxi, china - 6

S5 design creates a moody punk interior for barber shop in wuxi, china - 7
irregular shapes point down towards the basement level of the building

 

S5 design creates a moody punk interior for barber shop in wuxi, china - 8
plan

 

 

designboom has received this project from our DIY submissions  feature, where we welcome our readers to submit their own work for publication. see more project submissions from our readers here.

 

edited by: hollie smith | designboom