dia architecture remodels dogok office with transparent steel façade
photo © kyungsub shin
all images courtesy of dia architecture

 

 

 

the site of dia architecture‘s ‘dogok office remodeling’ is composed of a triangular shape at the junction of two main streets. the previous fan-shaped building was originally made of three cylindrical masses finished by red brick tiles, with excessively long horizontal openings.
the basic design strategy was to create a conversation between the existing facility and the new addition. in that sense, a translucent skin was considered from the outset of the process.

dia architecture dogok office remodeling seoul
perspective view
photo © kyungsub shin

dia architecture dogok office remodeling seoul
original building condition
photo © kyungsub shin

 

 

 

due to the three-dimensional holes made by its patterning, the expanded metal sheet conveys different degrees of penetration when viewed from a variety of angles and directions. the existing round mass could rather be regarded as potential and a variety of looks could be created by different distances of two skins.

dia architecture dogok office remodeling seoul
the resulting interior conditions of the skin
photo © kyungsub shin

 

 

 

by overlapping a steel cantilever frame to the existing building, a light layer was composed of glass and metal. the finely articulated boundary merges with and separates from the mass, blurring the distinction of floors on the façade. the translucency controls the amount of light entering the indoor space, while continuing to open up the view to the outside. the system is ever more transparent when illuminated within after nightfall, while becoming more pronounced when exposed to the sun during the day.

dia architecture dogok office remodeling seoul
the façade uses a series of two layers
photo © kyungsub shin

 

 

 

considering its location facing the main streets, the first floor was planned to be clear so that it may function as a café, and the main body covered with the second surface is a part that will be rented out as an office. a one-story vertical louver was placed on the uppermost rooftop area where it protrudes outwards, so as to function as an even more comfortable resting space.

dia architecture dogok office remodeling seoul
office interior
photo © kyungsub shin

dia architecture dogok office remodeling seoul
staircase detail
photo © kyungsub shin

dia architecture dogok office remodeling seoul
street view
photo © kyungsub shin

dia architecture dogok office remodeling seoul
plan B1F-1F

dia architecture dogok office remodeling seoul
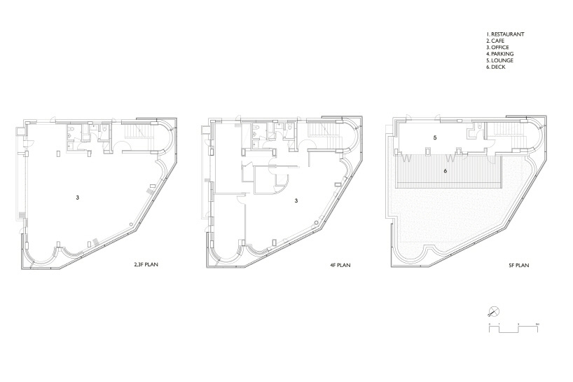
plan 1F-5F 

dia architecture dogok office remodeling seoul
sections

dia architecture dogok office remodeling seoul
elevations

 

 

project info:

 

architect: chung hyuna of dia architecture
design team: oh seunghyun
location: 425, dogok-dong, gangnam-gu, seoul, korea
program: commercial building (restaurant, café, office)
site area: 339.7m2
building area: 169.66m2
gross floor area: 941.68m2
building scope: B1-5F
height: 17.4m
parking: 6
building-to-land ratio: 49.94%
floor area ratio: 197.36%
structure: reinforced concrete
exterior finishing: expanded metal sheet
structural engineer: the structure
mechanical engineer: bow technical construction
electrical engineer: sungji E&C
construction: dasan construction engineering
design period: may-july 2013
construction period: july-nov.2013
photographer: kyungsub shin

 

 

designboom has received this project from our ‘DIY submissions‘ feature, where we welcome our readers to submit their own work for publication. see more project submissions from our readers here.