
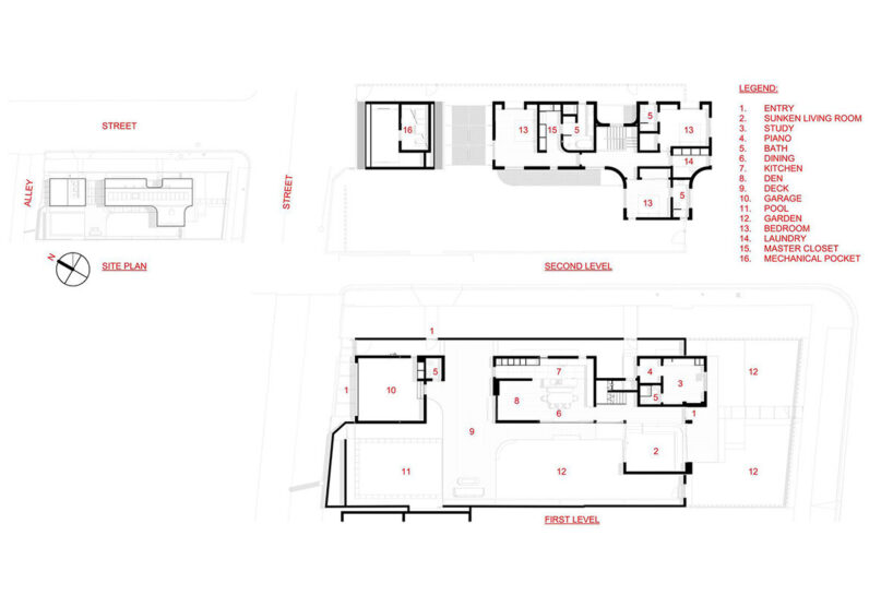
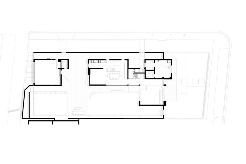
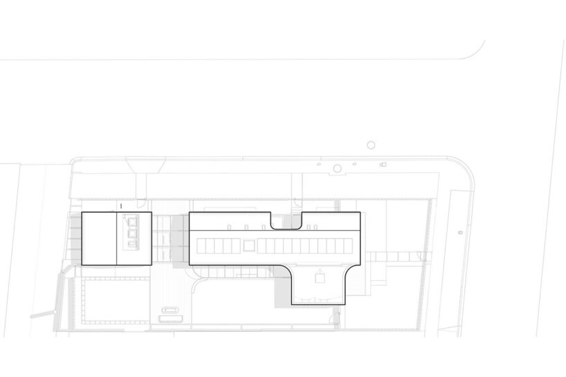
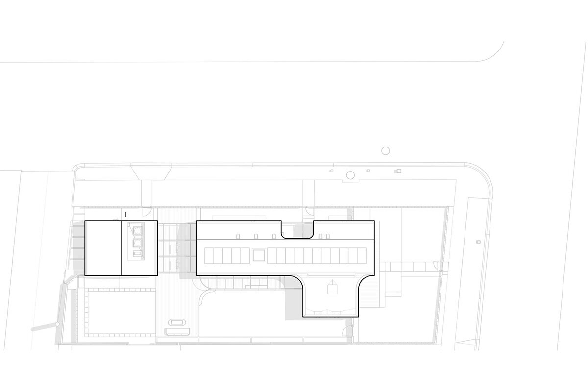
wood siding with a rain-screen design adds insulation and durability

the master suite spans the building while other bedrooms have treetop views
KEEP UP WITH OUR DAILY AND WEEKLY NEWSLETTERS
'grand canal gateway bridge' by zaha hadid architects reconnects hangzhou's waterway with a sculptural, ribbon-like steel structure.
the project will make its debut during the 2026 winter olympics in milan, and will then be moved to its permanent location in the alps to serve as a safe resting point for climbers and trekkers.
a system of platforms endlessly reshapes the exhibition spaces within the restored shell of the former grands magasins du louvre.
bjarke ingels' faith park in tirana will celebrate spiritual diversity with a series of pavilions and gardens along the albanian hillside.










