dubbeldam’s converted victorian terrace in toronto is a house of contrasts
photography by tom arban and bob gundu
all images courtesy of dubbeldam architecture + design

 

 

 

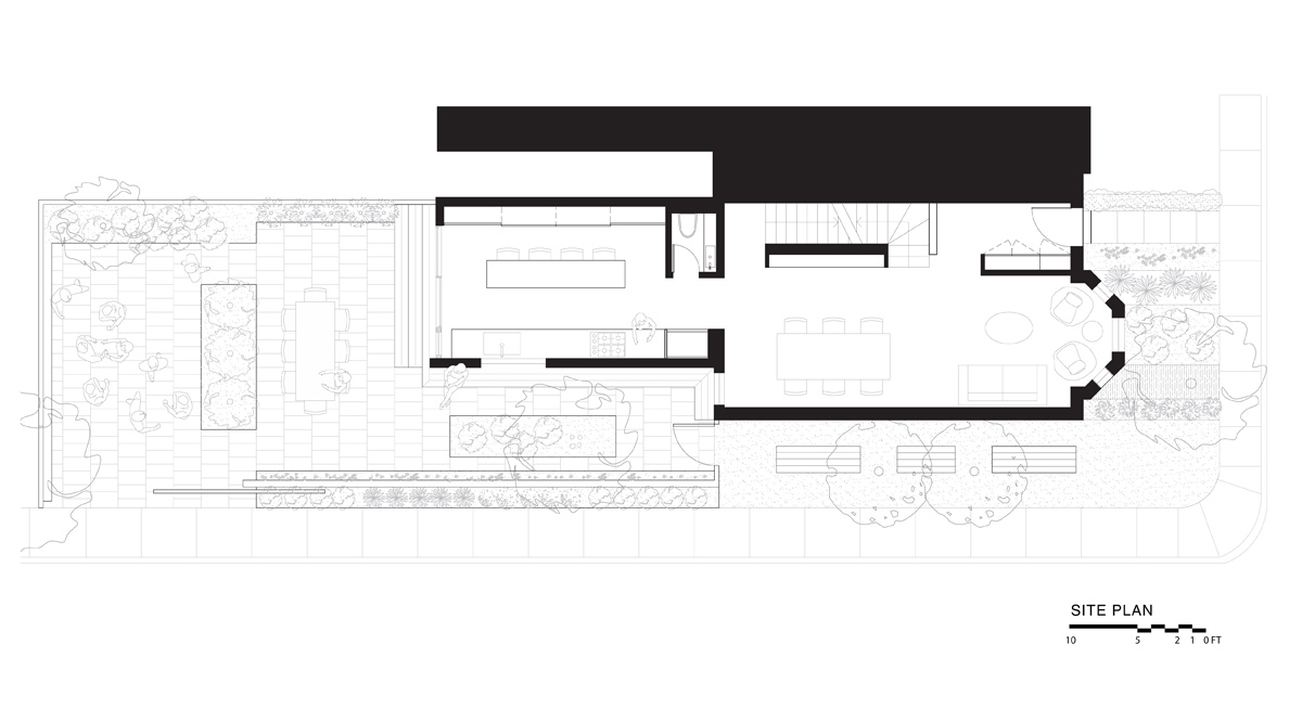
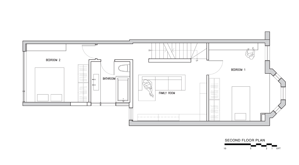
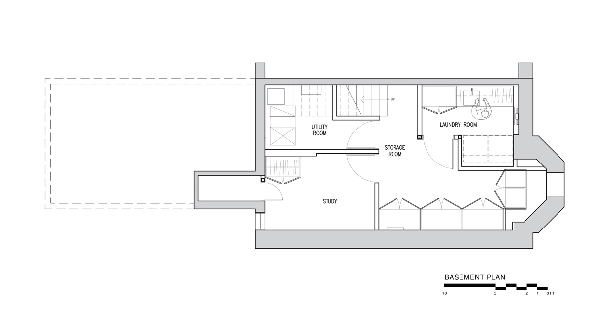
on a narrow corner lot in a dense downtown toronto neighborhood, local practice dubbeldam has transformed a small semi-detached house into a brightly lit, contemporary living space. in doing so, ‘contrast house’ adds to the present nature of the streetscape, rather than replacing it. the existing building possessed a south-facing façade, however it was only 11 feet wide and, due to a traditional victorian room layout, had no direct sight lines through the house.

dubbeldam contrast house toronto canada designboom
the rear portion of the house has been clad in black vertical boards

 

 

 

the long, narrow home has been opened up on all levels, with the rear portion of the house clad with black vertical boards to attract the sun’s rays. internal areas have also been reconceived by inserting black elements to define space, that simultaneously create a contrast that intensifies the quality of natural light. this thematic consistency is echoed throughout the residence.

dubbeldam contrast house toronto canada designboom
the previously long, narrow home has been opened up on all levels

 

 

 

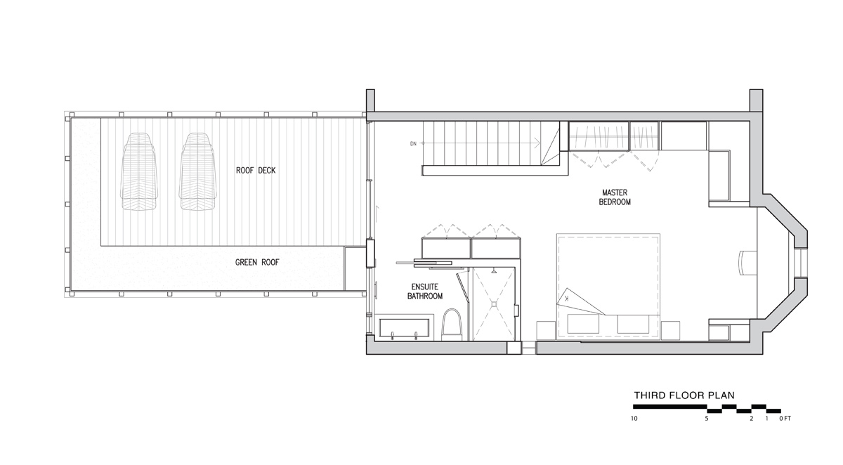
stacked vertically along the party wall from the basement to the third floor, a new open stairway not only improves light levels, but also ensures natural ventilation. combined with a large sliding door at the top of the staircase that draws hot air upwards in summer, this significantly reduces the need for air conditioning and artificial lighting.

dubbeldam contrast house toronto canada designboom
new sightlines are established through the core of the house

 

 

 

integrated within the roof deck, a small green roof provides a cooling effect for the upper floors and absorbs rainwater – preventing run-off. new insulation, low-flow plumbing fixtures, and the integration of energy-efficient lighting further reduces dependency on utilities, relieving the high costs commonly associated with urban living.

dubbeldam contrast house toronto canada designboom
internal rooms have also been reconceived, by inserting black elements to define space

dubbeldam contrast house toronto canada designboom
a new open stairway not only improves light levels, but also ensures natural ventilation

dubbeldam contrast house toronto canada designboom
the bedroom at the uppermost level features a desk for private contemplation

dubbeldam contrast house toronto canada designboom
the bedroom looking towards the rooftop terrace

dubbeldam contrast house toronto canada designboom
daylight enters through floor-to-ceiling glazing

dubbeldam contrast house toronto canada designboom
a small green roof provides a cooling effect for the upper floors

 

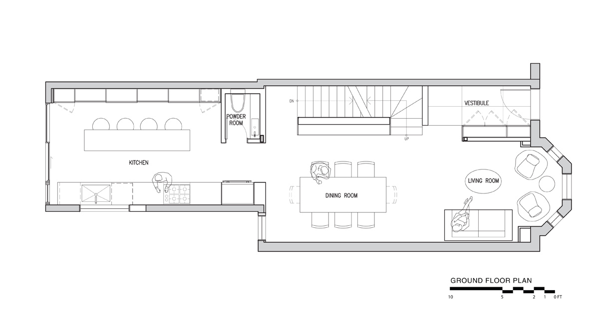
drawings

1/5
dubbeldam contrast house toronto canada designboom
 
dubbeldam contrast house toronto canada designboom
 
dubbeldam contrast house toronto canada designboom
 
dubbeldam contrast house toronto canada designboom
 
dubbeldam contrast house toronto canada designboom
 

 

project info:

 

designers: dubbeldam architecture + design
architect/design team: heather dubbeldam, oliver dang, rachel tameirao, jacob jebailey, bindya lad
size: 1,850 sqf / 172 sqm
location: toronto, canada
contractor: DDF european design
photography: tom arban, bob gundu