KEEP UP WITH OUR DAILY AND WEEKLY NEWSLETTERS
the spiral structure is built from upcycled lantana camara, an invasive shrub introduced to india through colonial trade routes.
connections: +990
designboom discusses this creative boom with stefano boeri, MVRDV's winy maas, christian kerez, beat huesler of oppenheim architecture, and the team at bofill taller de arquitectura.
the proposal draws from a historic english architectural feature composed of alternating curves.
the zando central market redevelopment turns one of the congolese capital’s most vital spaces into an infrastructure for 20,000 vendors.
connections: +1830

integrated fireplace
view into open eating and living area
view of kitchen
a light installation surrounds the doorway
(left) bathroom with natural light (right) light boxes by stairs
mediation room
the main entrance is constructed from lightly painted timber
terrace
front façade
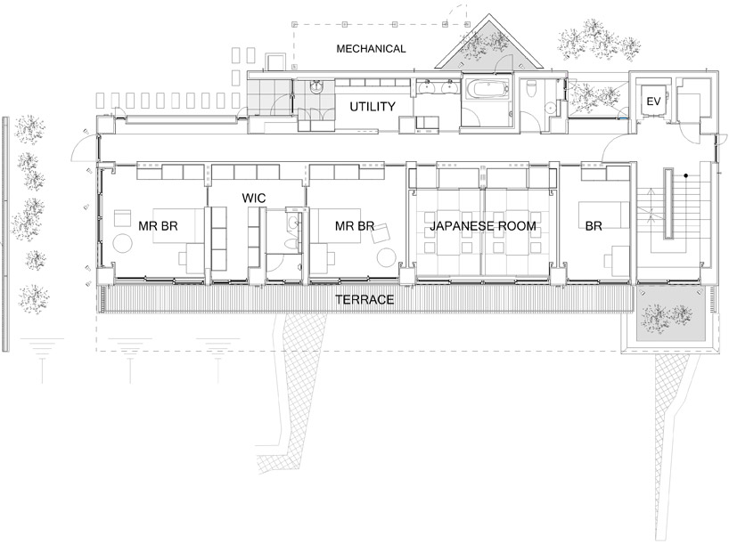
floor plan / level 0
floor plan / level 1
floor plan / level -1
floor plan / rooftop
front elevation
cross section