rowing and canoeing centre by josé maría sánchez garcía architects

madrid-based architect josé maría sánchez garcía has completed the ‘rowing and canoeing centre’ located in badajoz, spain. this open-air pavilion serves as a deck for boating activities and an impromptu classroom for workshops while overlooking the alange reservoir. a series of parallel exposed trusses emerging from a monolithic concrete plinth support a thin profile roof. this arrangement generates open air verandas around the perimeter of the structure. internal breezeways generated by the trusses and transparent walls gesture visitors towards the water, shore and boats.

rowing and canoeing centre by josé maría sánchez garcía architects
image © roland halbe / all images courtesy of josé maría sánchez garcía architects

 

 

the concrete foundation is immersed within the sand and becomes gradually exposed as it approaches the water’s edge. a void within the solid base contains a suspended ramp leading boaters to the programmed areas. public restrooms, changing rooms and offices are illuminated and ventilated by holes drilled into the solid walls which allow air and light to penetrate the submerged space.

rowing and canoeing centre by josé maría sánchez garcía architects
image © roland halbe

rowing and canoeing centre by josé maría sánchez garcía architects
image © roland halbe

rowing and canoeing centre by josé maría sánchez garcía architects
image © roland halbe

rowing and canoeing centre by josé maría sánchez garcía architects
floor plan / level 0
image courtesy of josé maría sánchez garcía architects

rowing and canoeing centre by josé maría sánchez garcía architects
floor plan / level +1
image courtesy of josé maría sánchez garcía architects

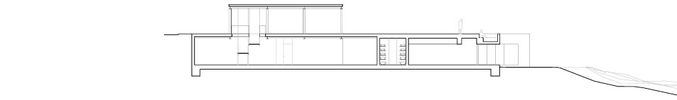
rowing and canoeing centre by josé maría sánchez garcía architects
section
image courtesy of josé maría sánchez garcía architects

rowing and canoeing centre by josé maría sánchez garcía architects
site section
image courtesy of josé maría sánchez garcía architects

rowing and canoeing centre by josé maría sánchez garcía architects
site section
image courtesy of josé maría sánchez garcía architects

rowing and canoeing centre by josé maría sánchez garcía architects
site section
image courtesy of josé maría sánchez garcía architects

rowing and canoeing centre by josé maría sánchez garcía architects
site section
image courtesy of josé maría sánchez garcía architects

rowing and canoeing centre by josé maría sánchez garcía architects
exploded axonometric
image courtesy of josé maría sánchez garcía architects

 

 

project info:

 

title: rowing and canoeing center in alange, badajoz
location: alange, badajoz, spain
construction: february 2008 – september 2010
total floor area: 1959,81 sqm
budget: €1,682,519.13 
architect: josé maría sánchez garcía
team: daniel gonzález guerrero, julia ternström, enrique garcía-margallo solo de zaldivar, francisco sánchez garcía, marion foucault, cruz calleja perucho, rafael fernández caparros, maribel torres gómez, laura rojo valdivielso, marilo sánchez garcía, marta cabezón lópez, mafalda ambrósio, carmen leticia huerta
structural engineer: maría concepción pérez gutiérrez
services engineer: aro consultores
photography: roland halbe
technical architect: pedro miranda, fernando benito fernández cabello
client: consejería de los jóvenes y del deporte – junta de extremadura consejería de cultura y turismo – junta de extremadura
building firm: procondal

Save

Save