estudio HMA unites two client homes into a single structure 
photo © federico kulekdjian
all images courtesy of estudio HMA

 

 

 

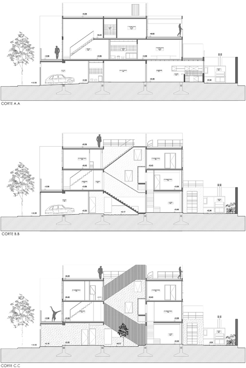
from the beginning of the design process, estudio HMA‘s ‘two houses conde’ had to respond to the various needs of two different clients with the same amount of square meters for their homes. according to the architects, ‘it is perhaps the greatest achievement of this project, having understood how to complete the entire buildable volume equally for both owners, and without losing the ability to have access to almost all of the terrain.’ the strategy chosen was to cross-distribute the meters that corresponded to each resident, so that both units rotate through the central axis of the patio in a centrifugal manner. to achieve the crossed connection of the two properties without wasting useful areas, the decision was made to externalize the staircases in a central courtyard.

hitzig militello two houses conde buenos aires argentina
stairs in courtyard from above and below
photo © federico kulekdjian

 

 

  

the silhouette of the residences is a result of utilizing the maximum vertical and horizontal dimensions permitted by the urban planning code of the city of buenos aires. one method for fully utilizing the limited amount of space was maintaining the interior of the existing property, clearly manifested through its bricks vaults. the renovated structure also recalls the old spatial organization positioning itself on the tracks of the previous house’s patios by adapting it to the new floor plans. thus, property A has two levels of four rooms placed above a ground level, and property B, of equal height, has five rooms in total. both dwellings are staggered so that terraces appear in both, the front and the back of the structure.

hitzig militello two houses conde buenos aires argentina
exterior strips of thin panels
photo © federico kulekdjian

 

 

 

this strategy of the façades is to identify the wall as a foreign element of the form. this operation is reflected in every surface with the intention of conceiving a solid plane whose openings use subtraction as a device to expose the raw materials behind its panels. these manipulations are achieved with a system of fences and balconies whose folds and textures seek to manifest sunlight and breezes of fresh air. meanwhile, the inner patio that organizes circulations is fully visible in the overall massing, making the stairwells the highlighted features of the voided space.

hitzig militello two houses conde buenos aires argentina
detail of the perforated, corrugated panels
photo © federico kulekdjian

hitzig militello two houses conde buenos aires argentina
interior views of the double-height living area
photo © federico kulekdjian

hitzig militello two houses conde buenos aires argentina
(left) interior view the stairwell
(right) exterior view of the criss crossing circulation pathways

 

 

1/11
estudio HMA: two houses conde designboom
 
estudio HMA: two houses conde designboom
 
estudio HMA: two houses conde designboom
 
estudio HMA: two houses conde designboom
 
estudio HMA: two houses conde designboom
 
estudio HMA: two houses conde designboom
 
estudio HMA: two houses conde designboom
 
estudio HMA: two houses conde designboom
 
estudio HMA: two houses conde designboom
 
estudio HMA: two houses conde designboom
 
estudio HMA: two houses conde designboom
 

 

project info:

 

location: buenos aires city, argentina
project documentation and construction: fernando hitzig and leonardo G militello
client: private
collaborators: rubén ruiz and virginia bottan
constructor: hitzig militello arquitetctos
structure advisor: carlos gandini
photography: federico kulekdjian
project: multi-family housing
total covered surface: 300 m²
total uncovered surface: 182 m²
project year: 2011-2012

 

 

designboom has received this project from our ‘DIY submissions‘ feature, where we welcome our readers to submit their own work for publication. see more project submissions from our readers here.