japanese practice eureka has finalized ‘dragon court village’ a residential development in aichi that incorporates areas of both privacy and nature within its design. constructed against a backdrop of increased threats from severe weather, the project seeks to establish a close relationship with notions of wildlife and community, providing comfortable and practical accommodation for its occupants.

eureka dragon court village designboom
the residential development is located in suburban aichi, japan
image © ookura hideki / kurome image studio (also main image)

 

 

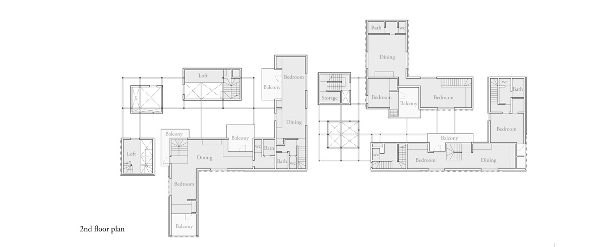
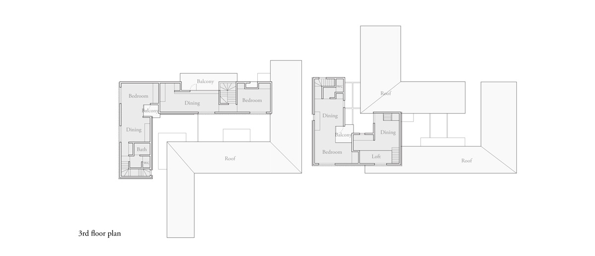
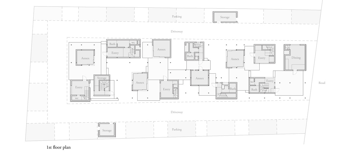
designed by eureka, the development is comprised of nine individual properties that relate to the surrounding environment through a series shared volumes positioned between neighboring units. each apartment provides space for two cars, meaning that alomst half of the site is covered with parking and driveways. these areas of the scheme allow for sheltered semi-outdoor spaces, carefully inserted within the project, with their specific position the result of rigorous wind simulations.

eureka dragon court village designboom
the development is comprised of nine individual properties
image © ookura hideki / kurome image studio

eureka dragon court village designboom
the project seeks to establish a close relationship with notions of wildlife and community
image © ookura hideki / kurome image studio

eureka dragon court village designboom
properties relate to their surrounding environment through shared volumes positioned between units
image © ookura hideki / kurome image studio

eureka dragon court village designboom
the scheme carefully inserts sheltered spaces within the design
image © ookura hideki / kurome image studio

eureka dragon court village designboom
the residences incorporates areas of privacy and nature within the program
image © ookura hideki / kurome image studio

eureka dragon court village designboom
a stairway connecting internal volumes
image © ookura hideki / kurome image studio

eureka dragon court village designboom
an area of privacy at the heart of the scheme
image © ookura hideki / kurome image studio

eureka dragon court village designboom
‘dragon court village’ illuminated at night
image © ookura hideki / kurome image studio

 

1/20
eureka dragon court village designboom
 
eureka dragon court village designboom
 
eureka dragon court village designboom
 
eureka dragon court village designboom
 
eureka dragon court village designboom
 
eureka dragon court village designboom
 
eureka dragon court village designboom
 
eureka dragon court village designboom
 
eureka dragon court village designboom
 
eureka dragon court village designboom
 
eureka dragon court village designboom
 
eureka dragon court village designboom
 
eureka dragon court village designboom
 
eureka dragon court village designboom
 
eureka dragon court village designboom
 
eureka dragon court village designboom
 
eureka dragon court village designboom
 
eureka dragon court village designboom
 
eureka dragon court village designboom
 
eureka dragon court village designboom
 

 

project info:

 

architects: eureka architectural design & engineering
principals-in charge: junya inagaki, satoshi sano, takuo nagai, eisuke hori
project team: kazutoshi sugimoto (ex-staff), yuki nagasawa (ex-staff), hiroyuki tsukada (ex-staff), kazunori yamaguchi (ex-staff)
consultants: the university of siga prefecture-takuo nagai, structural; waseda university-eisuke hori, environmental; kobayashi  seibun architectural design room-kiyofumi kobayashi, satoru mori, others
general contractor: taikei construction co.,ltd.
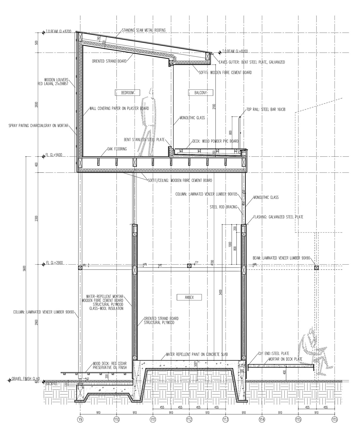
structural system: timber
major materials: laminated veneer lumber, redlauan, mortar, galvanized steel, plaster board, oak flooring
site area: 1,177 sqm
building area: 360 sqm
total floor area: 508 sqm
design: 2012-13
construction: 2013