fields completes bespoke interior of a split level apartment in istanbul
all images by altkat

 

 

 

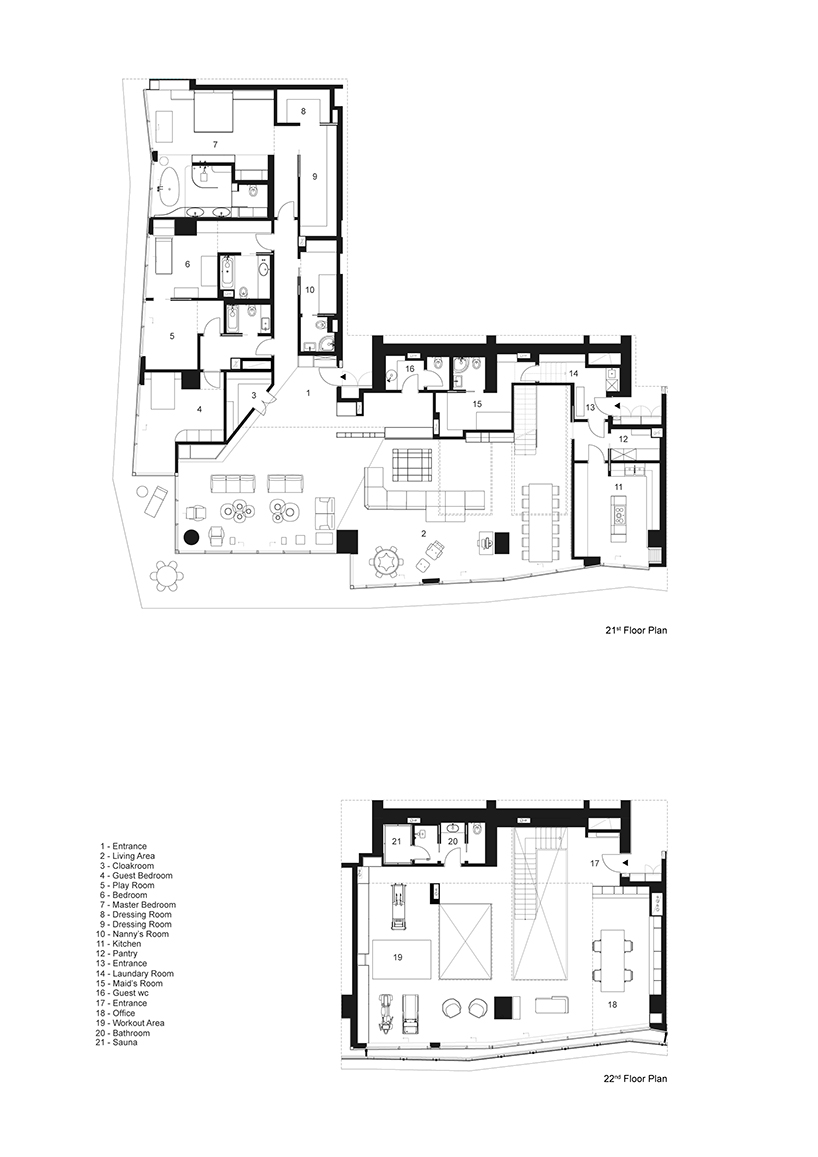
architecture and industrial design firm fields has completed the interior of an apartment inside istanbul’s zorlu center. the ‘zeynep & emre residence’ is split over the tower’s 21st and 22nd floors comprising 5 bedrooms, a playroom, a kitchen, two utility rooms, a living room connected to the level above, as well as a private open-plan office and work out area on the upper storey. bedrooms are aligned to the western façade, leaving the entire southern elevation with views towards the adjacent bosphorus strait.

fields completes bespoke interior of a split level apartment in istanbul
open-plan living accommodation

 

 

 

the living room is divided into three functional zones for dining, entertaining, and lounging. each area is characterized by the use of different materials and articulation of custom designed fixed and movable furniture. an L-shaped stair connects the living room to the level above where the private office and work out area are organized at opposite ends of the plan. the 4 meter american oak dining table and its chairs are designed specifically for this project, joining the CNC-milled polyurethane feature wall and the mineral cast bath tub as some of the home’s bespoke appliances.

fields completes bespoke interior of a split level apartment in istanbul
the american oak dining table was designed specifically for this project

fields completes bespoke interior of a split level apartment in istanbul
the CNC-milled polyurethane feature wall was another bespoke piece

fields completes bespoke interior of a split level apartment in istanbul
an L-shaped stair connects the living room to the level above

fields completes bespoke interior of a split level apartment in istanbul
the private office and work out area are organized at opposite ends of the plan

fields completes bespoke interior of a split level apartment in istanbul
the office features a large desk allowing communal work or meetings

fields completes bespoke interior of a split level apartment in istanbul
shelving and storage is integrated into the design

fields completes bespoke interior of a split level apartment in istanbul
a children’s playroom

fields completes bespoke interior of a split level apartment in istanbul
the master bathroom overlooks the city below

fields completes bespoke interior of a split level apartment in istanbul
floor plans

 

 

designboom has received this project from our ‘DIY submissions‘ feature, where we welcome our readers to submit their own work for publication. see more project submissions from our readers here.

 

edited by: philip stevens | designboom