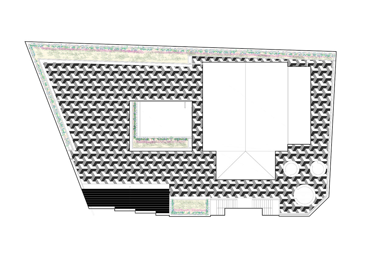
in northern spain, garciagerman arquitectos has transformed a historic plaza using bold geometric paving inspired by optical art. the space was previously an unused and disconnected area situated on top of santander’s puertochico market. the project reconnects the public square to the neighborhood with a new flight of stairs facing the adjacent street conceived as an ‘urban grandstand’.

garciagerman-arquitectos-puertochico-plaza-and-market-cantabria-spain-designboom-02
all images by imagen subliminal

 

 

garciagerman arquitectos’ renewed plaza includes a children’s playground, extensive flowerbed plantings, and long perimeter benches. vegetation is organized in parallel bands that block immediate views from within the elevated piazza. ‘the new intervention deliberately reduces the range of gestures and materials in an aim to introduce an abstract and homogeneous counterpoint to a discordant urban environment,’ explain the architects.

garciagerman-arquitectos-puertochico-plaza-and-market-cantabria-spain-designboom-02
the historic plaza has been transformed using bold geometric paving

 

 

the scheme’s carpet-like paving creates an op-art effect, designed to de-contextualize the historic cultural center that sits at its center. as a result, the building appears to float above the street. the paving is made from EcoGranic prefabricated colored concrete pieces that filter mono-nitrogen oxides and serve as active de-contaminants. the project forms the first part of a larger redevelopment of the market, which will later include outdoor restaurants and food stalls.

garciagerman-arquitectos-puertochico-plaza-and-market-cantabria-spain-designboom-02
the carpet-like surface is inspired by optical art

garciagerman-arquitectos-puertochico-plaza-and-market-cantabria-spain-designboom-02
C-shaped benches provide public seating areas

garciagerman-arquitectos-puertochico-plaza-and-market-cantabria-spain-designboom-02
the paving is made from prefabricated concrete pieces that filter mono-nitrogen oxides

garciagerman-arquitectos-puertochico-plaza-and-market-cantabria-spain-designboom-02
vegetation is organized to block immediate views from within the elevated piazza

garciagerman-arquitectos-puertochico-plaza-and-market-cantabria-spain-designboom-02
the scheme forms the first part of a larger redevelopment of the market

garciagerman-arquitectos-puertochico-plaza-and-market-cantabria-spain-designboom-02
the historic building appears to float above the passing street

garciagerman-arquitectos-puertochico-plaza-and-market-cantabria-spain-designboom-02
the project reconnects the square to the neighborhood with a new flight of stairs

 

1/12
garciagerman arquitectos puertochico plaza and market santander spain designboom
 
garciagerman arquitectos puertochico plaza and market santander spain designboom
 
garciagerman arquitectos puertochico plaza and market santander spain designboom
 
garciagerman arquitectos puertochico plaza and market santander spain designboom
 
garciagerman arquitectos puertochico plaza and market santander spain designboom
 
garciagerman arquitectos puertochico plaza and market santander spain designboom
 
garciagerman arquitectos puertochico plaza and market santander spain designboom
 
garciagerman arquitectos puertochico plaza and market santander spain designboom
 
garciagerman arquitectos puertochico plaza and market santander spain designboom
 
g10agarciagerman arquitectos puertochico plaza and market santander spain designboom
 
garciagerman arquitectos puertochico plaza and market santander spain designboom
 
garciagerman arquitectos puertochico plaza and market santander spain designboom
 

 

project info:

 

brief: renovation of plaza mercado de puertochico
completed: 2016
client: excelentísimo ayuntamiento de santander
location: santander, spain
team: jacobo garcía-germán, manuel del río, marta garcía, laura carrero, miguel lópez, raquel díaz de la campa, martha sosa dias, lidia de lucas, jaime gonzález, lucía vallés
builder: teginser SL — grupo perteo
photography: imagen subliminal

Save

Save

Save

Save

Save

Save

Save

Save

Save

Save

Save

Save

Save

Save