general design's NH office building represents the image of the subculture clothing line
‘NH office’ by general design co ltd, tokyo, japan
image © daici ano
all images courtesy of general design co ltd

japanese practice general design co ltd have finished a new headquarters for apparel brand ‘neighborhood’ in the shibuya district of tokyo.
the ‘NH office’, made to represent the underground image of the subculture clothing line, features a variety of exposed raw materials giving it a similar
industrial feel. the work spaces, organized around a centrally located light well, are cased within a reinforced concrete construction.
slender bands of black-painted steel members form the structure to generate the airy internal spaces, providing a more connected
floor plan to encourage open communication amongst the employees.

the two basement levels include a garage and presentation rooms, lit through a combination of artificial and filtered natural daylight to
adequately illuminate the subterranean environment. interior partitions stand as basic plywood panels, allowing their own natural
grain to provide a soft contrast to their hard surroundings.

general design's NH office building represents the image of the subculture clothing line
entrance from exterior
images © daici ano

general design's NH office building represents the image of the subculture clothing line
left: entrance vestibule from the main floor
right: entrance vestibule from 2nd level

images © daici ano

general design's NH office building represents the image of the subculture clothing line
interior light well
image © daici ano

general design's NH office building represents the image of the subculture clothing line
ground level central space
images © daici ano

general design's NH office building represents the image of the subculture clothing line
upper levels
images © daici ano

general design's NH office building represents the image of the subculture clothing line
interior steel stair case
images © daici ano

general design's NH office building represents the image of the subculture clothing line
stairwell to basement
images © daici ano

general design's NH office building represents the image of the subculture clothing line
basement
image © daici ano

general design's NH office building represents the image of the subculture clothing line
basement
image © daici ano

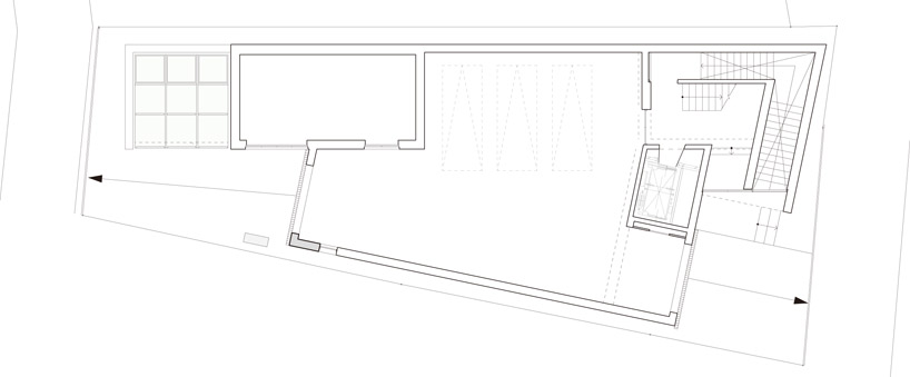
general design's NH office building represents the image of the subculture clothing line
floor plan / 0

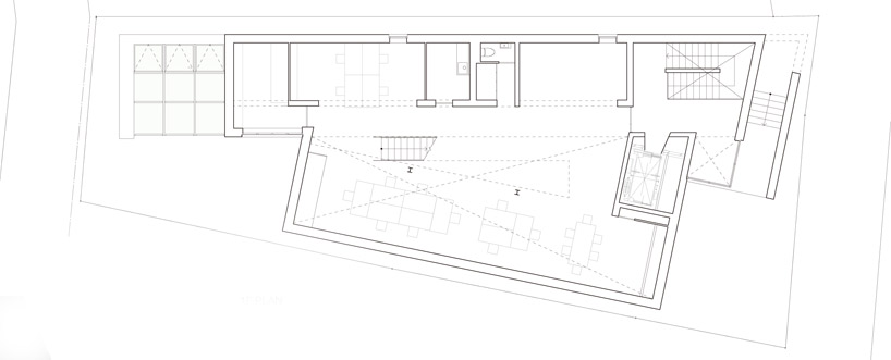
general design's NH office building represents the image of the subculture clothing line
floor plan / 1

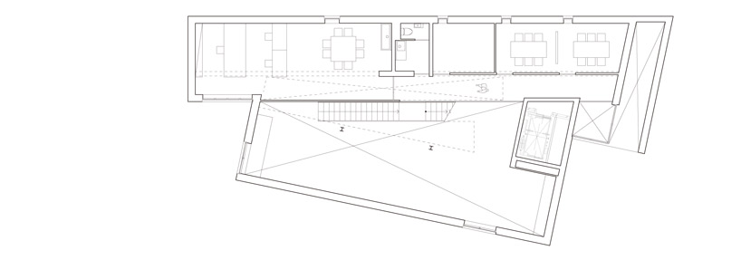
general design's NH office building represents the image of the subculture clothing line
floor plan / 2

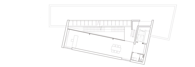
general design's NH office building represents the image of the subculture clothing line
floor plan / -1

general design's NH office building represents the image of the subculture clothing line
floor plan / -2

general design's NH office building represents the image of the subculture clothing line
section

general design's NH office building represents the image of the subculture clothing line
section

general design's NH office building represents the image of the subculture clothing line
elevation

general design's NH office building represents the image of the subculture clothing line
elevation

project info:

architect: shin ohori / general design
location: shibuya, tokyo
structural system: reinforced concrete
site area: 402.17 m2
built area: 236.98 m2
total floor area: 992.31 m2