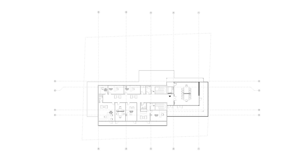
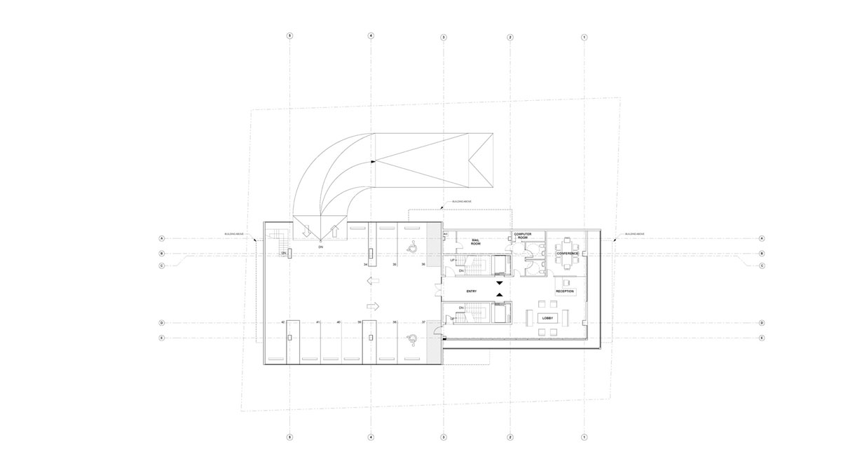
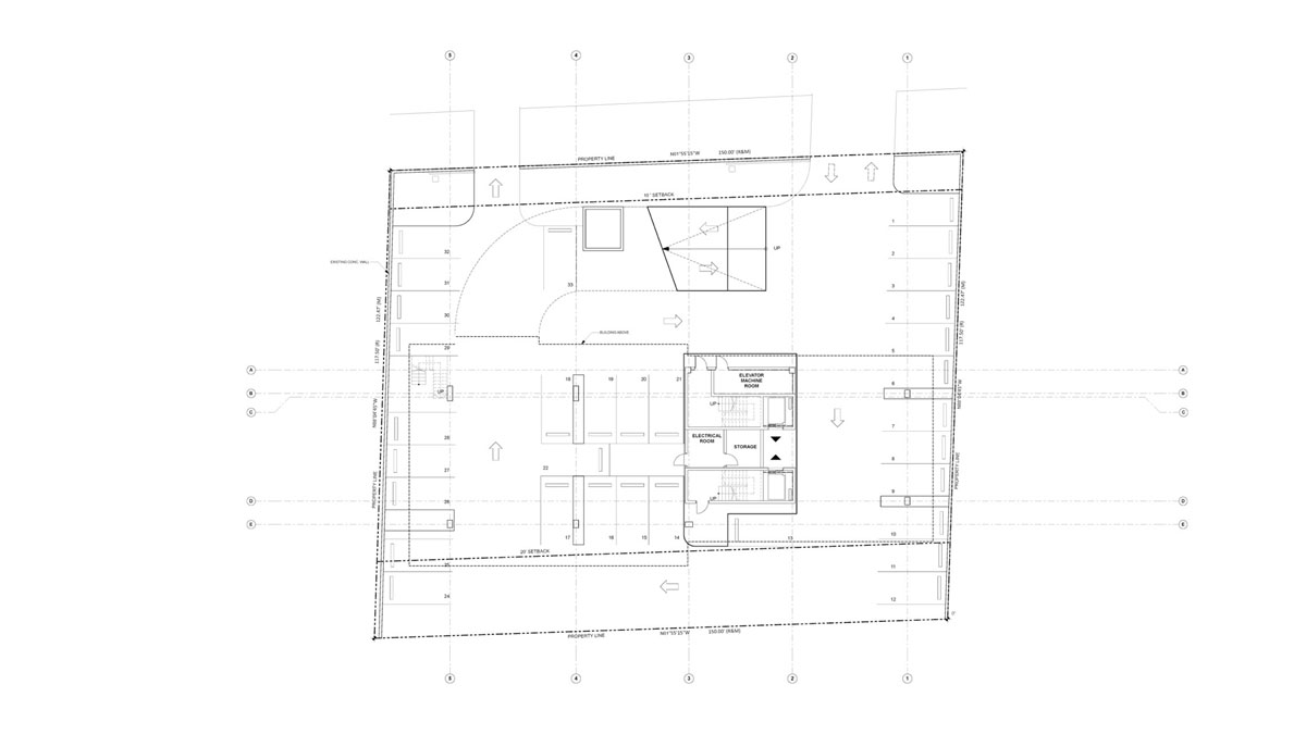
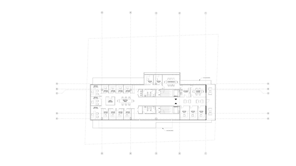
oppenheim architecture designed this office complex comprised of overlapping concrete boxes along the banks of the miami river. called the ‘GLF headquarters’, the building comprises various shared and private offices, conferences rooms, and various other spaces where once can enjoy the beautiful florida sunshine. the building is right on the water, so theoretically engineers working there could take a water taxi to work.oppenheim
all images by karen fuchs

 

 

the building draws inspiration from its adjacent context, a context that looks like the set of a miami vice stake out — the river is full of 1980s speedboats and the banks are lined with palm trees. the design team at oppenheim architecture claims they were inspired by the simple geometry of shipping containers, which are not an uncommon sight along the river. while there have been many buildings made out of shipping containers, there are few that draw inspiration from them rather than use them as building material. one might be a tad skeptical of this inspiration, but the result is elegant. the interlocking of various concrete boxes creates a number of interesting spaces that are refined and soothing.

oppenheim

 

 

while this office building was designed to fit into the landscape, upon closer inspection its details start to stand out. the staggered concrete boxes are filled with pristine glass windows that show the blue sky behind it. the simple plan allows beautiful chance moments where the blue sky is visible between a contorting corner of a concrete frame. it manages to satisfy aesthetic desires for a space without pretension. it’s simple, stylish, and gets the job done.oppenheim oppenheim oppenheim oppenheim oppenheim oppenheim oppenheim oppenheim oppenheim oppenheim oppenheim oppenheim 

 

 

1/8
oppenheim-architecture-glf-headquarters-designboom-51
 
oppenheim-architecture-glf-headquarters-designboom-52
 
oppenheim-architecture-glf-headquarters-designboom-53
 
oppenheim-architecture-glf-headquarters-designboom-54
 
oppenheim-architecture-glf-headquarters-designboom-55
 
oppenheim-architecture-glf-headquarters-designboom-56
 
oppenheim-architecture-glf-headquarters-designboom-57
 
oppenheim-architecture-glf-headquarters-designboom-58