KEEP UP WITH OUR DAILY AND WEEKLY NEWSLETTERS
snøhetta wins an international competition to design the qiantang bay art museum for the riverfront of hangzhou.
the project will make its debut during the 2026 winter olympics in milan, and will then be moved to its permanent location in the alps to serve as a safe resting point for climbers and trekkers.
a system of platforms endlessly reshapes the exhibition spaces within the restored shell of the former grands magasins du louvre.
bjarke ingels' faith park in tirana will celebrate spiritual diversity with a series of pavilions and gardens along the albanian hillside.

couches, beds and storage are integrated into the curved wooden wall images ©
a reading corner with attached lights image ©
a curtain may be drawn to separate the spaces image ©
kitchen image ©
doors and cubbies may be closed images ©
images ©
entry to bedroom from living area image ©
separate bedroom + desk images ©
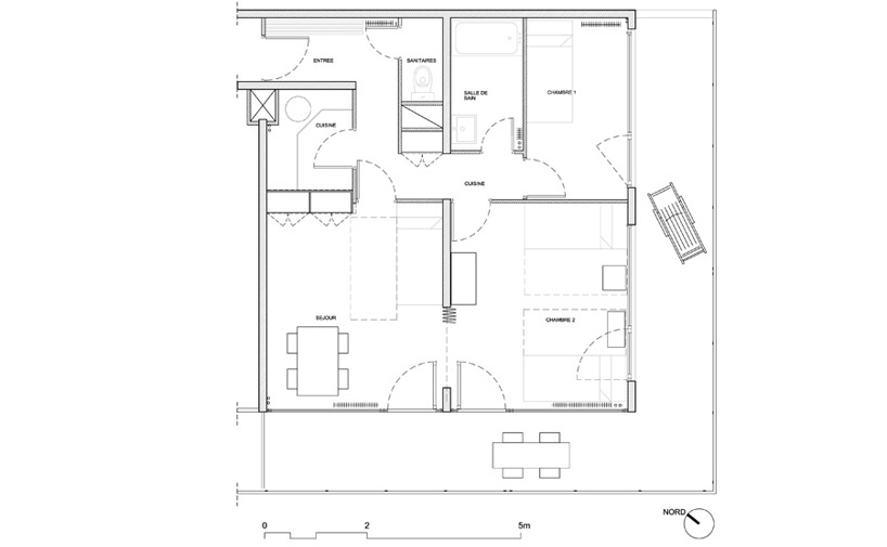
floor plan / new
floor plan / original
axonomentric
program