häkli architects crafts omenapuisto daycare center in helsinki
photo by jussi tiainen
all images courtesy of häkli architects

 

 

 

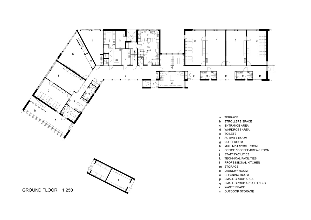
located on a narrow strip of land in suburban helsinki, ‘omenapuisto daycare center’ establishes a bright and open educational environment that provides a necessary degree of supervision. designed by finnish practice häkli architects, the project responds to its immediate context, following the region’s street pattern. at the southern tip of the plot an external play area offers a link with internal areas of the project. the 890 square meter building is primarily single storey, with the only exception being a double-height volume with a balcony looking to the level below.

hakli architects omenapuisto daycare center helsinki designboom
changes of level are utilized through recreational equipment such as slides and climbing slopes
photo by jussi tiainen

 

 

 

sloping gently in two directions, the roof comprises a large gutter at both ends that discards rainwater into a stone paved pool. the changes of level across the site are utilized through recreational equipment such as slides and climbing slopes. clad in 42mm finnish timber, external façades are cut in three different widths of glulam beams before being planed smooth. elevations are left in their natural color, allowing them to turn grey over time.

 

a paved internal courtyard features a large circular opening cut into the canopy, allowing the sun’s movement to establish a play of light and shadow throughout the day. within the space, a sculpture by the artist pasi karjula represents the universe, consisting of twenty spheres made of larch wood.

hakli architects omenapuisto daycare center helsinki designboom
external façades are cut in three different widths of glulam beams before being planed smooth
photo by jussi tiainen

hakli architects omenapuisto daycare center helsinki designboom
elevations are left in their natural color, allowing it to turn grey over time
photo by jussi tiainen

hakli architects omenapuisto daycare center helsinki designboom
the daycare center is located on a narrow strip of land in suburban helsinki
photo by jussi tiainen

hakli architects omenapuisto daycare center helsinki designboom
a paved internal courtyard features a large circular opening cut into the canopy
photo by jussi tiainen

hakli architects omenapuisto daycare center helsinki designboom
areas of recreation surround the single storey structure
photo by jussi tiainen

hakli architects omenapuisto daycare center helsinki designboom
the use of timber is continued inside the building
photo by jussi tiainen

hakli architects omenapuisto daycare center helsinki designboom
the scheme establishes a strong relationship with its surroundings
photo by jussi tiainen

 

1/11
hakli architects omenapuisto daycare center designboom
 
hakli architects omenapuisto daycare center designboom
 
hakli architects omenapuisto daycare center designboom
 
hakli architects omenapuisto daycare center designboom
 
hakli architects omenapuisto daycare center designboom
 
hakli architects omenapuisto daycare center designboom
 
hakli architects omenapuisto daycare center designboom
 
hakli architects omenapuisto daycare center designboom
 
hakli architects omenapuisto daycare center designboom
 
hakli architects omenapuisto daycare center designboom
 
hakli architects omenapuisto daycare center designboom
 

 

project info:

 

floor area: 890 sqm
completed: 2013
building developer: helsingin kaupunki, tilakeskus
client: helsingin kaupunki, sosiaalivirasto
building developer consult: a-insinöörit rakennuttaminen oy
architectural design: arkkitehtitoimisto häkli / seppo häkli, matti tervonen
structural design: hkr-ark-tto / antti nurmi
main contractor: larmix group oy