naoko horibe architect’s office: house in kamihachiman
image © kaori ichikawa
all images courtesy of horibe associates

 

 

 

concealed from its surrounding neighbors, this design by japanese firm horibe associates offers a high level of privacy, while still achieving a sense of light and openness from the inside. located on a street in japan lined uniformly with houses along it, ‘house in kamihachiman’ is orientated towards a bamboo forest on its northern side. the building’s angular-shaped roof slants upwards, allowing large double-height windows to frame the natural landscape. vast amounts of daylight filter through into the interior, helping to connect the open-plan living and dining spaces to the outside. carefully crafted details in a simple palette of wooden materials with white painted finishes help the built-in furniture become part of the overall architecture. abstracted voids on both sides of the house increase the volume’s sense of openness, while peeking down from the upstairs room, a recessed window looks onto to the dining area below and beyond to the exterior landscape. an enclosed outdoor terrace is attached to the living room, giving the occupants a private indoor-outdoor area, which adds to the building’s sense of lightness.

 

 

naoko horibe architect's office: house in kamihachiman
‘house in kamihachiman’ is orientated towards a bamboo forest on its northern side
image © kaori ichikawa

 

 

"/
the interior is crafted in a simple palette of wooden materials with white painted finishes
image © kaori ichikawa

 

 

"/
large double-height windows frame the natural landscape from the dining, kitchen area
image © kaori ichikawa

 

 

"/
an angular void adds to the building’s sense of openness 
image © kaori ichikawa

 

 

"/
built-in furniture becomes part of the overall architecture
image © kaori ichikawa

 

 

"/
a recessed window peeks down from the upstairs room onto to the dining area and bamboo forest below
image © kaori ichikawa

 

 

"/
an enclosed outdoor terrace is attached to the living room, giving the occupants a private indoor-outdoor area
image © kaori ichikawa

 

 

"/
plan first floor

 

 

"/
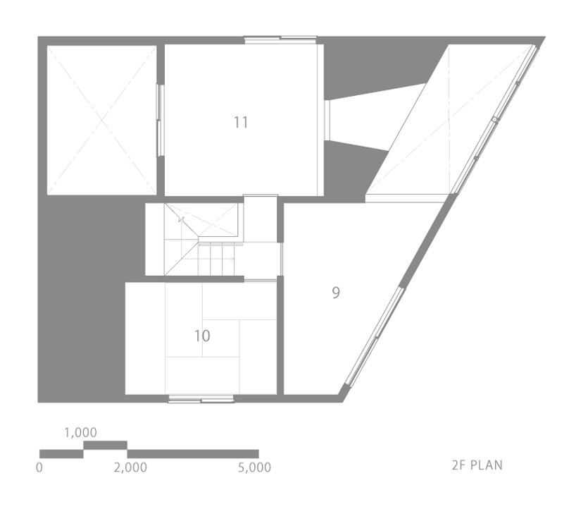
plan second floor

 

"/
section