KEEP UP WITH OUR DAILY AND WEEKLY NEWSLETTERS
'what if one of the building industry’s most hazardous materials could become one of its most promising?’
connections: +670
with the legendary architect's passing, we are revisiting the buildings that redefined what architecture could look and feel like.
connections: +210
the founders of amateur architecture studio have been appointed curators of the 20th international architecture exhibition, opening may 8th, 2027.
connections: 12
the project sits like a ring placed over the terrain, with its funnel-like roof forming a shaded perimeter walkway and an introverted core.

view of house from the 50-year old cherry tree image © kaori ichikawa
site is bordered by a retaining wall to the south image © kaori ichikawa
ground level dining area is designed for convenience image © kaori ichikawa
view of kitchen from the dining area image © kaori ichikawa
view of stairs and dining area from the first floor image © kaori ichikawa
north-facing window image © kaori ichikawa
view from the living room image © kaori ichikawa
living room image © kaori ichikawa
living room + balcony beyond image © kaori ichikawa
TV area + balcony image © kaori ichikawa
bedroom image © kaori ichikawa
washroom + lavatory image © kaori ichikawa
illuminated at night image © kaori ichikawa
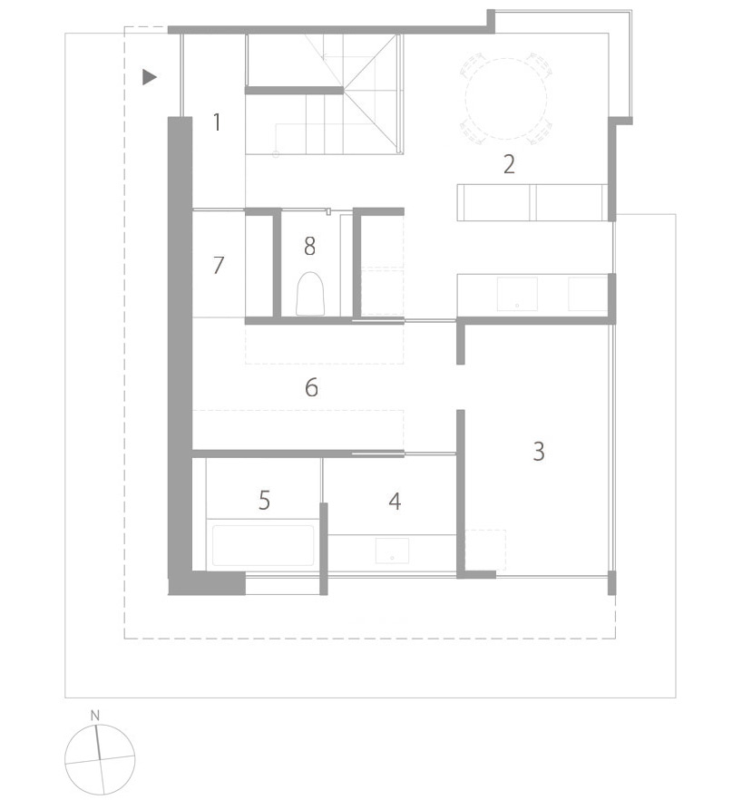
floor plan / level 0 1. entrance 2. dining & kitchen 3. atelier 4. washroom & lavatory 5. bathroom 6. walk-in closet 7. shoe closet 8. lavatory 9. car parking space
floor plan / level 1 10. living room 11. child’s bedroom 12. library 13. master bedroom 14. balcony
section