mjölk architects presents its ‘house behind a wall’ — a project comprising the restoration and revitalization of a derelict, gable-roofed heritage building overlooking the mountainous landscape surrounding the czech city of liberec. as the stone basement was still intact, the team moved to demolish the rest of the house and use this remaining underlying structure as the foundation for the new project, characterized by its distinctly brutal concrete facade. the team at mjölk comments: ‘our courageous and somewhat risky plan worked out and today, the clients live in a beautiful, modern house which combines the historical soul of its predecessor and nordic esthetics with a touch of industrial style.

mjolk house behind wall
all images by boysplaynice

 

 

‘house behind a wall’ is situated on a lot which borders a road used by tourists venturing to the jizera mountains. in response to the heavy traffic along this road, mjölk architects built the house behind a street-facing concrete wall, designed in place of the original facade. this gesture serves an acoustic function, decreasing noise from the road, as well as an aesthetic function, introducing a defining, monumental entrance to the project. behind the wall is a small yard with a view of ještěd, the highest mountain in the country. the yard serves to mediate between the entrance, the guest house and the stairs leading downward to the yard below. 

mjolk house behind wall

 

 

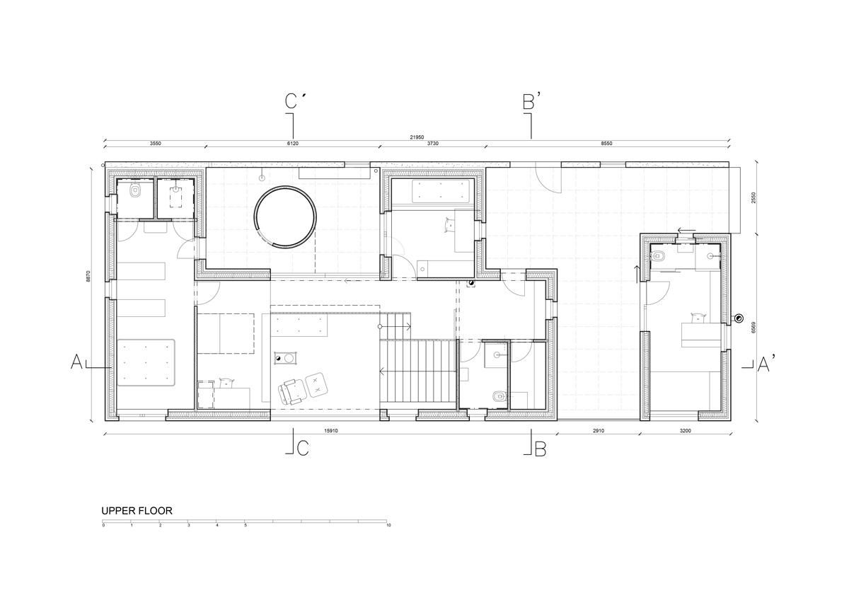
the renovated structure, built above the original stone foundation, is built of timber, with a black, tar-painted facade. the house behind the concrete wall actually comprises two houses: a family house and a small guest house for a young sailor — the clients’ son — who spends most of the year at the helm of transatlantic ships. the living space of the main house is defined by large windows on both sides. the window on the southwest facade offers views over the valley of ještěd mountain while the north window shows the yard and sauna.

mjolk house behind wall mjolk house behind wall mjolk house behind wall mjolk house behind wall mjolk house behind wall mjolk house behind wall mjolk house behind wall mjolk house behind wall mjolk house behind wall mjolk house behind wall

 

 

1/8
mjolk-architects-house-behind-wall-designboom-014
 
mjolk-architects-house-behind-wall-designboom-015
 
mjolk-architects-house-behind-wall-designboom-016
 
mjolk-architects-house-behind-wall-designboom-017
 
mjolk-architects-house-behind-wall-designboom-018
 
mjolk-architects-house-behind-wall-designboom-019
 
mjolk-architects-house-behind-wall-designboom-020
 
mjolk-architects-house-behind-wall-designboom-021
 

project info:

 

project title: house behind a wall

architecture: mjölk architects

project location: liberec, czech republic

client: michaela turková, stanislav turek

completion year: 2018

project size: 271.5 square meters

site size: 1147 square meters

photography: jakub skokan, martin tůma | boysplaynice