KEEP UP WITH OUR DAILY AND WEEKLY NEWSLETTERS
happening now! yusuke kawai explains how his design for pedrali’s kawara lighting collection fuses sacred japanese architecture with industrial precision.
'this building says to the world, harlem matters. black art matters. black institutions matter,' raymond j. mcguire, chairman of the board of trustees, said during the museum's preview opening.
snøhetta wins an international competition to design the qiantang bay art museum for the riverfront of hangzhou.
the project will make its debut during the 2026 winter olympics in milan, and will then be moved to its permanent location in the alps to serve as a safe resting point for climbers and trekkers.
a system of platforms endlessly reshapes the exhibition spaces within the restored shell of the former grands magasins du louvre.

wood planks embedded into the ground create a natural path to the entrance image © walter salcedo
transparent metal garage door image © walter salcedo
back yard image © walter salcedo
glass ‘V’ interjects into the space, defining and separating two distinct parts of the house image © walter salcedo
image © walter salcedo
(left) west wing: stairs, service and garage (right) social living area images © walter salcedo
upstairs hallway images © walter salcedo
swimming pool image © walter salcedo
living room window and outdoor patio image © walter salcedo
exterior patio, partly covered image © walter salcedo
image © walter salcedo
image © walter salcedo
street side image © walter salcedo
image © walter salcedo
site plan
floor plan / level 0
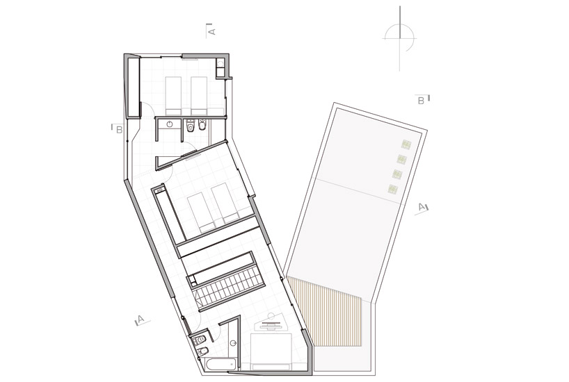
floor plan / level 1
section
section
diagram: evolution of form