IES cap norfeu extension by javier de las heras solé + bosch tarrús arquitectes
image © adrià goula

 

 

 

enlarging the existing school complex, javier de las heras solé + bosch tarrús arquitectes have provided two new structures to IES cap norfeu. the development is situated in roses, spain and the extension surrounds an existing, operating building. the concept follows two different strategies – projected out from the ground floor a new linear box sits on top of a solid base. this volume consists of two classrooms, the lab, teacher and tutorial department and is placed parallel to the warehouse. opening out to the schoolyard, the structure is framed by a lattice, which allows light to filter through. the second strategy sees the canteen-catering-bar, the dressing rooms, the alumni association, ampa and the warehouse all grouped in another form that helps to frame the courtyard. these new spaces follow the formal language of the existing building, while also providing the school with its required programs.

 

 

IES cap norfeu extension by javier de las heras sole + bosch tarrus arquitectes
the extension follows the formal language of the exsiting school building
image © adrià goula

 

 

IES cap norfeu extension by javier de las heras sole + bosch tarrus arquitectes
the light box sits on top of a solid base and contains new classrooms for the school
image © adrià goula

 

 

IES cap norfeu extension by javier de las heras sole + bosch tarrus arquitectes
the volume is orientated towards the south and opens to face a courtyard
image © adrià goula 

 

 

IES cap norfeu extension by javier de las heras sole + bosch tarrus arquitectes
the shape follows the formal language of the existing building
image © adrià goula

 

 

IES cap norfeu extension by javier de las heras sole + bosch tarrus arquitectes
view of looking towards the second structure at the site’s northern end
image © adrià goula

 

 

IES cap norfeu extension by javier de las heras sole + bosch tarrus arquitectes
view showing the exterior lattice that allows light to filter through
image © adrià goula

 

 

IES cap norfeu extension by javier de las heras sole + bosch tarrus arquitectes
detail of the lattice structure
image © adrià goula

 

 

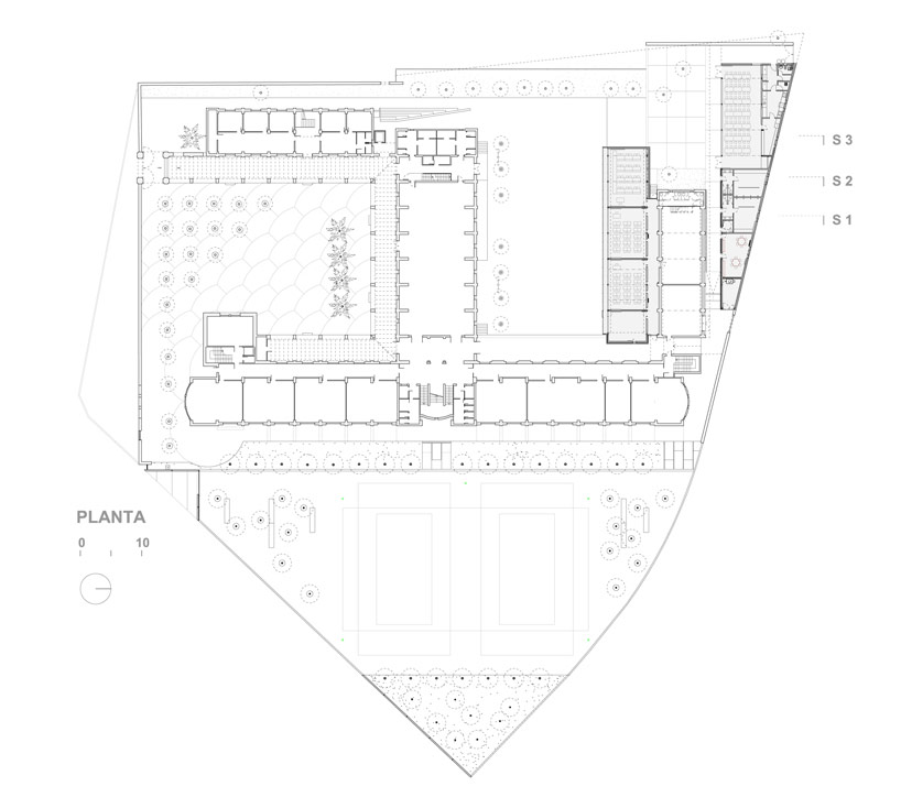
IES cap norfeu extension by javier de las heras sole + bosch tarrus arquitectes
plan
image © de las heras solé – bosch tarrús arquitectes

 

 

IES cap norfeu extension by javier de las heras sole + bosch tarrus arquitectes
sections and elevation
image © de las heras solé – bosch tarrús arquitectes

 

 

project info:

 

type: 1st prize, restricted competition
location: carrer ponent, roses, girona, spain
date: november 2007
construction period: december 2010 / october 2011
authors: javier de las heras solé – bosch tarrús arquitectes SCP
architects: mercedes sánchez hernández, asunción belda esteban
contributors: blàzquez-guanter arquitectes consultors d’estructures, proisotec, enginyeria
jordi roig fontseca, arquitecto técnico
site management: javier de las heras solé, architect
executive management: sònia cuevas, arquitecto técnico (summa, sa)
promoter: gestió d’infraestructures sau gisa
contractor: arcadi pla, sa
photography: adrià goula

 

 

designboom has received this project from our ‘DIY submissions‘ feature, where we welcome our readers to submit their own work for publication. see more project submissions from our readers here.